Særdeles præsentabel kontorejendom m. gode faciliteter
29.088 kr.
Beboelsesvogne fra Simple Homes
Udlejning til bl.a. privatgenhusning - høj service og hurtig levering
UDLEJNING AF BEBOELSESVOGNE
Vi udlejer vogne, lifte, Mobile badeværelser, Mandskabsvogne og Kontor-/spisevogne
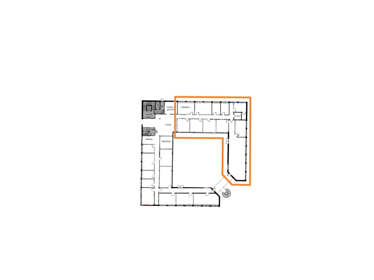
Særdeles præsentabel kontorejendom med moderne og indbydende fællesarealer – og med den helt rigtige placering. **Området** Ejendommen er beliggende centralt i ét af Ballerups mest eftertragtede erhvervskvarterer – Lautrupparken – der huser Danmarks største koncentration af high-tech og forskningsvirksomheder, hvorfor du nok har hørt det omtalt som Danmarks ”Silicon Valley”. Ejendommen er placeret få minutter fra Ring 4, der strækker sig fra Kongens Lyngby i nord, til Ishøj i syd, samt motorvejsnettet, som hurtigt og let får dig til transporteret rundt i Storkøbenhavn, til indre by, Københavns Lufthavn mm. Ejendommen blev opført i 1986, og fremstår flot og præsentabel med den, for området, velkendte hvide facade. Ejendommen, som er på godt 11.000 m<sup>2</sup>, huser i forvejen flere andre store og mellemstore lejere, heriblandt ProjectBinder ApS, Testhuset A/S, C2IT A/S, ConvaTec Danmark A/S. **Lejemålet** Man kommer ind til lejemålene via et fælles glasindgangsparti, hvorfra man træder ind i en åben og indbydende foyer. Førsteindtrykket er vigtigt, og derfor er der også kræset for detaljerne med hyggelige loungemøbler, grønne planter og – til de førstegangsbesøgende – en elektronisk infotavle, der giver dine gæster et komplet og hurtigt overblik over huset, dets lejere og dagens møder. Fra foyeren, der også fungerer som knudepunkt for de tre kontorblokke, finder man ligeledes ejendommens fælles kantine og mødecenter. Fra kantinen er der direkte udgang til husets grønne gårdhave og hyggekroge. Det ledige lejemål er beliggende i Blok B på 2.sal, udgør 537 m² eller 1.074 m<sup>2</sup>, svarende til en hel etage. Lejemålet består af en lang fordelingsgang med en række aflukkede kontorer/mødelokaler i forskellige størrelser, med kig ud over matriklens parkeringsplads og grønne arealer, og på højre hånd kigger man ud mod ejendoms udendørs gård Lejemålet er også at finde på nettet med en totalistandsættelse, men denne annonce lægger op til at lejemålet overtages som beset - både til en lavere leje og uden binding. **Parkerings- og **** trafikforhold** Til ejendommen hører ca. 200 gratis parkeringspladser, og med mulighed for at leje privat p-plads i ejendommens parkeringskælder. Der går ligeledes Bus 40E og 55E lige foran ejendommen, der ca. hvert 15. minut kører mellem hhv. Skodborg-Høje Taastrup og Allerød-Malmparten St. Fra ejendommen er der 2 stop til Malmparken St. **Størrelse** Lejemålet udgør 537 m² - 1.074 m<sup>2</sup>. **Leje ** Den månedlige leje udgør for 537 m² ved kr. 46.275,57. Den månedlige leje udgør for 1.074 m² ved kr. 92.551,06. Svarende til en leje på kr. 650,00 pr. m<sup>2</sup>, med tillæg af aconto drifts- og varmeudgifter. **Regulering af leje** Basislejen reguleres årligt, pr. 1. januar, med udviklingen i nettoprisindekset, dog minimum 2%, første gang pr. 1. januar 2027. **Driftsudgifter** Der betales en andel af ejendommens driftsudgifter. Der udarbejdes årligt driftsregnskab efter fordelingstal. Lejer betaler aconto driftsudgifter med kr. 291,43 pr. m<sup>2</sup>, svarende til kr. 13.041,49 om måneden for 537 m² Lejer betaler aconto driftsudgifter med kr. 291,43 pr. m<sup>2</sup>, svarende til kr. 26.082,99 om måneden for 1.074 m² **Varme** Alle lejere betaler en forholdsmæssig andel af varme og vand udgifterne. Der udarbejdes årligt varme- og vandregnskab efter fordelingstal. Lejer betaler aconto varmebidrag med kr. 92,66 pr. m<sup>2</sup>, svarende til kr. 4.146,54 om måneden for 537 m² Lejer betaler aconto varmebidrag med kr. 92,66 pr. m<sup>2</sup>, svarende til kr. 8.293,07 om måneden for 1.074 m² **Depositum** Der beregnes et depositum svarende til 6 måneder, af den til enhver tid værende basisleje. **Moms** Alle ydelser tillægges den til enhver tid gældende moms. **Vedligeholdelse** Indvendig vedligeholdelse af det lejede påhviler lejeren. Udvendig vedligeholdelse påhviler udlejeren. **Energimærke** Ejendommen har d. 5. oktober 2017 fået energimærke C. **Opsigelse** I forbindelse med indgåelse af lejekontrakten forhandles mellem Lejer til Udlejer en uopsigelig lejeperiode, hvorefter lejemålet kan opsiges med 6 måneders varsel. **Indflytning** Efter aftale.
Se annoncen hos forhandlerenFlere detaljer
































