Stort og anvendeligt butikslokale med attraktiv beliggenhed i Valby
1 kr.
Beboelsesvogne fra Simple Homes
Udlejning til bl.a. privatgenhusning - høj service og hurtig levering
UDLEJNING AF BEBOELSESVOGNE
Vi udlejer vogne, lifte, Mobile badeværelser, Mandskabsvogne og Kontor-/spisevogne
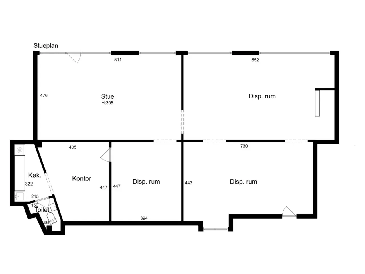
Lejemålet, som har et butiksareal på 189 m², er beliggende centralt på Toftegårds Plads med meget stor synlighed. Lejemålet er opdelt i to salgslokaler med store facadevinduer, og 3 store baglokaler – det ene med adgang til køkken og toilet. I det ene salgslokalet er lem til nedgang til kælderlokale til opbevaring. Der er loftshøjde på godt 3 meter i butiksarealet, som er med til at give et lyst og rummeligt indtryk. Gulvene i lejemålet er belagt med vinyl. Et pænt lejemål, der er velegnet til rigtig mange formål. Plantegning på kælder er under udarbejdelse. Beliggenhed Lejemålet er beliggende i ejerforening bestående af to ejendomme, der er placeret rundt om Toftegårds Plads i Valby. Valby er i en rivende udvikling, hvor attraktive bygninger og områder blomstrer op med især beboelsesejendomme. Området fra Toftegårds Plads og helt ned til Ny Ellebjerg station, som i fremtiden kommer til at hedde København Syd, har tidligere være synonym med industrivirksomheder, men gennemgår i disse år en forandring med masser af nye beboelsesejendomme og forskellige typer erhverv. Skråt overfor Toftegårds Plads på den tidligere F.L. Smidth-grund er idag en helt ny bydel med boliger, butikker og grønne pladser. Området tiltrækker både børnefamilier og de unge studerende. Endelig er der ikke langt til rekreative områder i både Valbyparken og Søndermarken eller det hyggelige gamle Valby. Lejemålets energimærke er angivet til: C
Se annoncen hos forhandlerenFlere detaljer















