Nyopført kontor og isoleret lager til leje i Vejle
25.025 kr.
Beboelsesvogne fra Simple Homes
Udlejning til bl.a. privatgenhusning - høj service og hurtig levering
UDLEJNING AF BEBOELSESVOGNE
Vi udlejer vogne, lifte, Mobile badeværelser, Mandskabsvogne og Kontor-/spisevogne
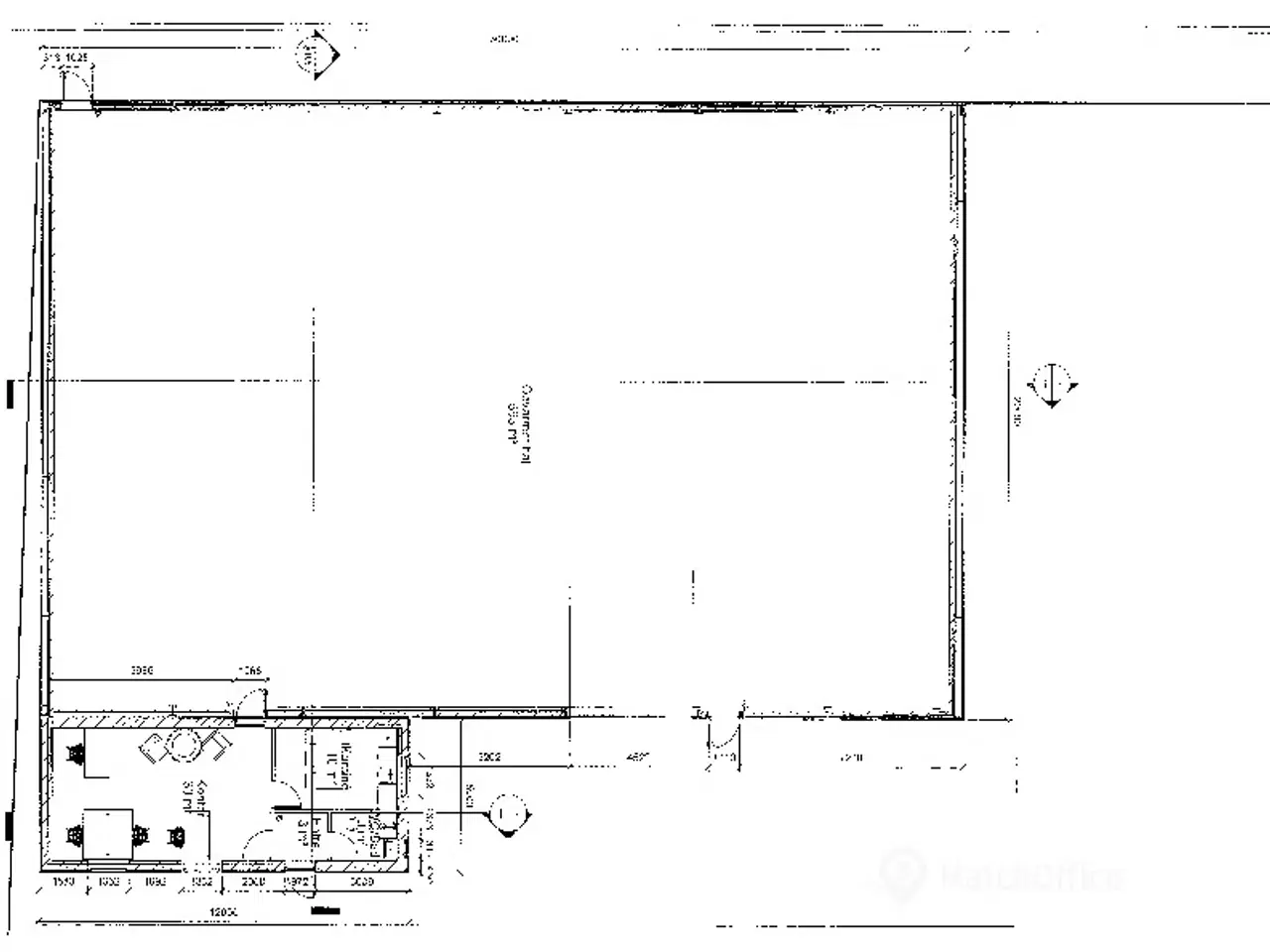
**Attraktive lokaler til erhverv – klar til indflytning** Er du på udkig efter moderne og funktionelle erhvervslokaler i Vejle? Nu udbydes 60 m² kontor samt 600 m² isoleret lager til leje på attraktiv beliggenhed nær gode tilkørselsforhold. **Kontor (60 m²):** - Nyopført og muret bygning - Moderne og lyst kontormiljø - Gode faciliteter **Lager (600 m²):** - Isoleret lagerbygning med god lofthøjde - Stor port og nem adgang for vareindlevering - Velegnet til lager, opbevaring mv. **Beliggenhed** Ejendommen ligger på Maribovej i den sydlige del af Vejle – tæt på motorvej E45 og hovedvejsnettet, hvilket sikrer nem adgang for både medarbejdere og leverandører. **Øvrige fordele** - Gode parkeringsforhold - Mulighed for skiltning - Fleksible lejevilkår - Indflytning efter aftale Lejemålets energimærke er angivet til: A2020
Flere detaljer












