Markant og attraktivt placeret kontorejendom
362.575 kr.
Beboelsesvogne fra Simple Homes
Udlejning til bl.a. privatgenhusning - høj service og hurtig levering
UDLEJNING AF BEBOELSESVOGNE
Vi udlejer vogne, lifte, Mobile badeværelser, Mandskabsvogne og Kontor-/spisevogne
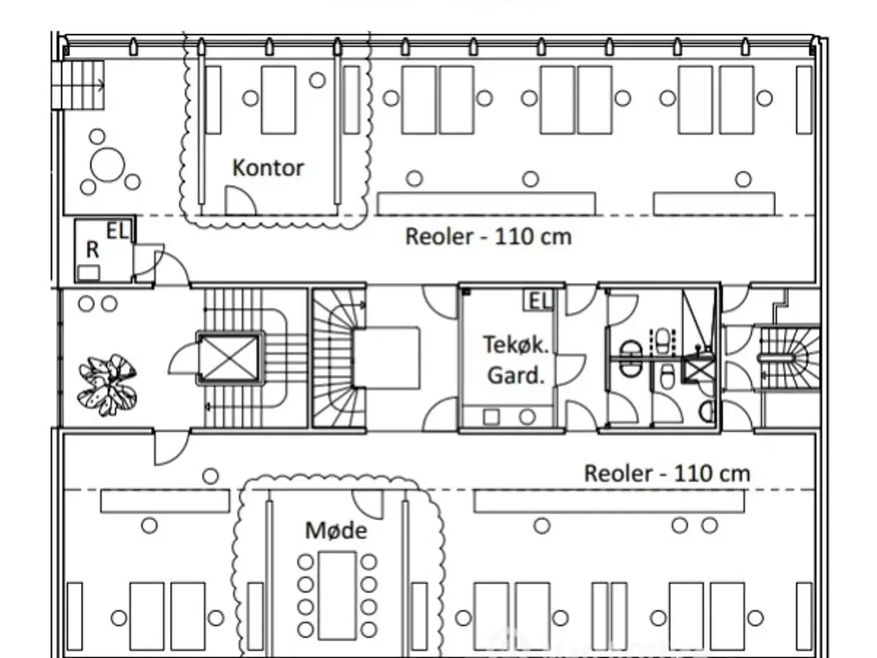
Lejemålet er beliggende i ejendommen Nyropsgade 14, 1602 København V – en markant og attraktivt placeret kontorejendom midt i et af hovedstadens mest eftertragtede erhvervskvarterer. Nyropsgade 14 er tegnet af arkitekterne August Rasmussen og Torben Miland Petersen og blev færdiggjort i 1957. Det samlede kontorudlejningsareal udgør 2.261 m2 fordelt på 7 etager samt et kælderareal på 335 kvm, svarende til et samlet udlejningsareal på 2.596 kvm. Arealerne fremstår lyse, fleksible og lette at indrette med en ensartet etagegeometri og store vinduespartier, som sikrer en effektiv udnyttelse og et naturligt dagslysindfald på alle etager. Ejendommen er særdeles velegnet til mellemstore og store virksomheder, der ønsker en central placering, høj synlighed og repræsentative kontorarealer i hjertet af København. Der er etableret elevator, ventilationsanlæg og fjernvarme, hvilket bidrager til et moderne og stabilt indeklima. På hver etage findes tekøkkener og toilet. Til ejendommen hører 10 parkeringspladser, der kan lejes efter nærmere aftale. Derudover er der adgang til ca. 200 parkeringspladser i nærliggende Q-Park-faciliteter. Lejemålet overtages i pæn og opdateret stand, og indretningen kan tilpasses efter nærmere aftale i forbindelse med lejekontraktens indgåelse Lejemålets energimærke er angivet til: B
Se annoncen hos forhandlerenFlere detaljer
Om boligen
- Produkttype
- Erhvervslokaler























