Flot flerbrugerejendom med helt nyistandsatte lagerlejemål og tilhørende kontor. i Ballerup.
21.470 kr.
Beboelsesvogne fra Simple Homes
Udlejning til bl.a. privatgenhusning - høj service og hurtig levering
UDLEJNING AF BEBOELSESVOGNE
Vi udlejer vogne, lifte, Mobile badeværelser, Mandskabsvogne og Kontor-/spisevogne
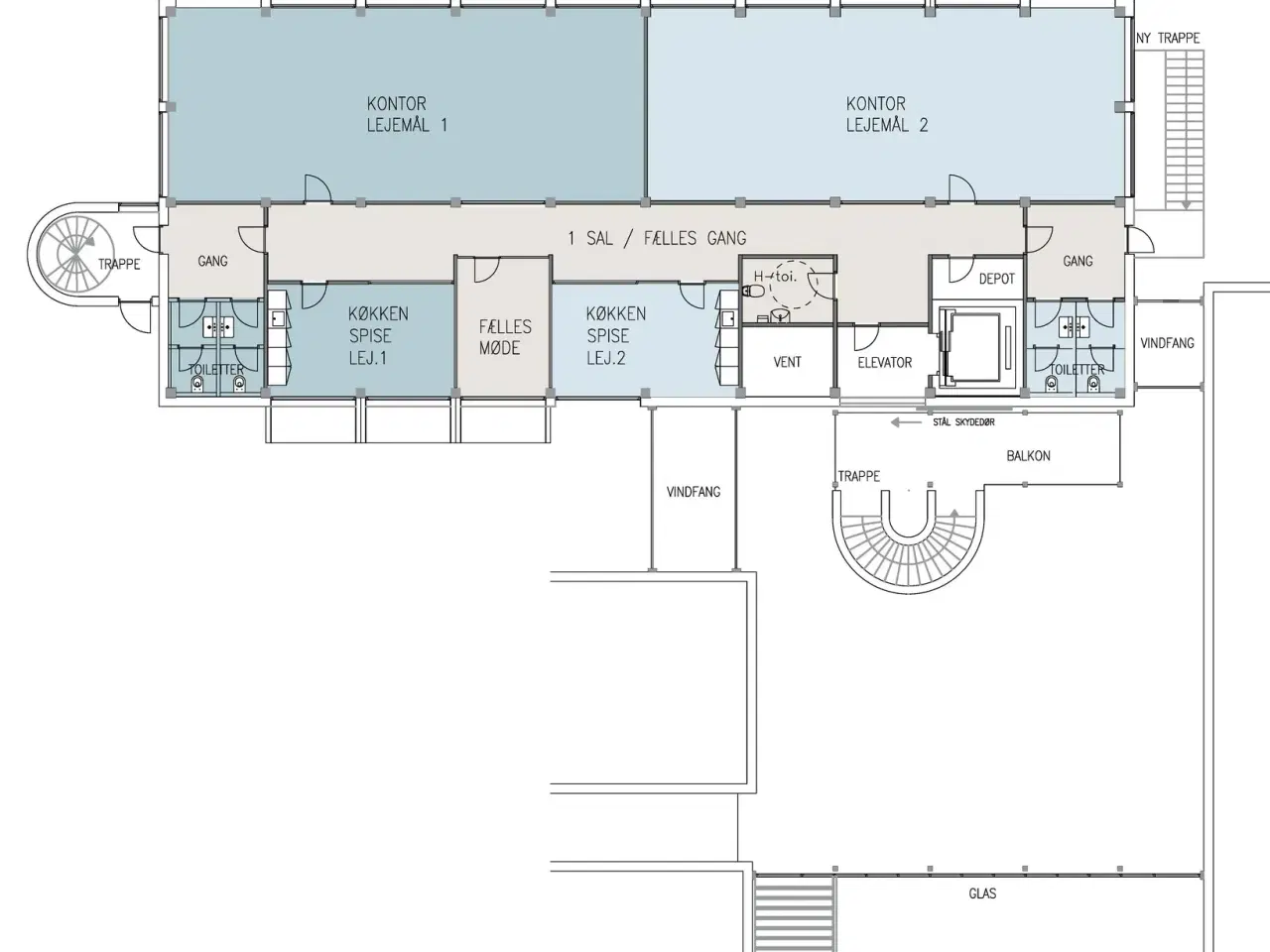
Der er mulighed for at have indflydelse på indretningen af lejemålet. OM EJENDOMMEN Vi har fornøjelsen af at præsentere denne velholdte og stilrene flerbrugerejendom beliggende i et attraktivt erhvervsområde. Ejendommen fremstår meget flot og moderne, efter istandsættelsen. Her i denne ejendom er der 3 ledige lejemål, hvor der både er lager- og kontorlejemål eller et lagerlokale, som også kan bruges som showroom. Ejendommen er beliggende på en stor indhegnet grund, med ind- og udkørsel via skydeport. Inden for kort afstand er det muligt at komme til Ballerup Boulevard og Ballerup Byvej, samt Ring 4, som giver god adgang til resten af motorvejsnettet. Offentlig transport er også en god mulighed, med ca. 600 m til Malmparken station, hvor S-toglinjerne C og H kører, samt flere forskellige buslinjer. OM LEJEMÅLENE Lejemålene består af et lagerlokale i stuetagen på 227 kvm, som kan tilgås via en port, samt et kontorområde på 229 kvm på ejendommens 1.sal. Der er både en trappe og elevator mellem stueetagen og 1. salen. Lejemålene fremstår meget flotte og er helt nyistandsat. I kontorområderne følger der eget tekøkken og spisefaciliteter, samt egne toiletter. Det er muligt at leje flere af lejemålene samlet. OBS! Lejen angivet er 1. års leje. Lejen i år 2 er 725 pr. m² INFRASTRUKTUR MED BUS - Ved Malmparken st. stopper buslinjerne 40E og 350S. MED TOG - Der er ca. 600 m til Malmparken St. hvorfra S-toglinjerne C og H kører I BIL - Inden for kort afstand er det muligt at komme til Ballerup Blvd. og Ballerup Byvej, samt Ring 4. Kontakt os for mere info. Medlem af Dansk Ejendomsmæglerforening
Flere detaljer




















