Investeringsejendom i Ødsted nær Vejle sælges
1 kr.
Beboelsesvogne fra Simple Homes
Udlejning til bl.a. privatgenhusning - høj service og hurtig levering
UDLEJNING AF BEBOELSESVOGNE
Vi udlejer vogne, lifte, Mobile badeværelser, Mandskabsvogne og Kontor-/spisevogne
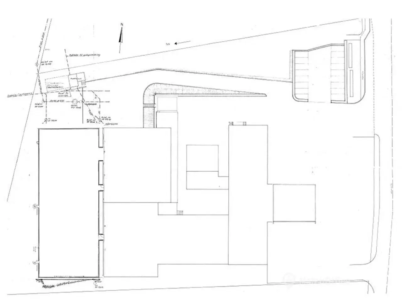
**Ejendommen er centralt beliggende i Ødsted, der er en mindre by lige udenfor Vejle. Ødsted har omkring 1.500 indbyggere, og denne ejendom er beliggende midt i byen, skråt overfor byens indkøbscenter, DagliBrugsen.** Ejendommen ligger 10 min. kørsel fra Vejle by og 15 min. til den Jyske Motorvej. Der er gode tilkørselsforhold både på offentlige veje samt vejene på grunden ind til bygningerne. Endvidere er god offentlig transport med stoppested ved ejendommen. Ejendommen består af flere bygninger, der er sammenbygget. Hovedbygningen er opført i 1950, opført i røde teglsten med tagdækning af skifereternit og ombygget i 1977. Der er en fritstående bygning til rensningsanlæg og en fritstående bygning oprindelig bygget til tankvognsterminal. Bygningerne er på nuværende tidspunkt opdelt i 4 lejemål, hvor det ene lejemål er ledig. Dertil kommer, at der 3 antennelejemål. Det ledige lejemål er på ca. 2.700 m2. Tidligere blev bygningen anvendt til mejeri. Det betyder, at der er fliser på både væg og gulv i store dele af stuetagen. Resten af bygningen anvendes som lager, og det kan tilgås via port og læsserampe. Hovedbygningen er udlejet til 2 forskellige firmaer. Der er lavet en tilbygning på 225 m2 ud mod vejen. Oprindeligt anvendt som læsseterminal/værksted. Lejemålet anvendes i dag primært til lager. Den bagerste del af hovedbygningen er også den nyeste del af bygningerne. Den er opført med built up tag med tagpap. Her har vi de ledige lokaler til den kommende ejer af ejendommen. Lejemålet er udstyret med udsugningsanlæg og der er stor strømkapacitet. Udenomsarealerne op til bygningerne er asfalterede. Endvidere er der et mindre græsareal ved siden af bygningerne. Der er gode parkeringsmuligheder på ejendommen.
Se annoncen hos forhandlerenFlere detaljer




















