Fuldt udlejet investeringsejendom med byggeret på 900 m2
Beboelsesvogne fra Simple Homes
Udlejning til bl.a. privatgenhusning - høj service og hurtig levering
UDLEJNING AF BEBOELSESVOGNE
Vi udlejer vogne, lifte, Mobile badeværelser, Mandskabsvogne og Kontor-/spisevogne
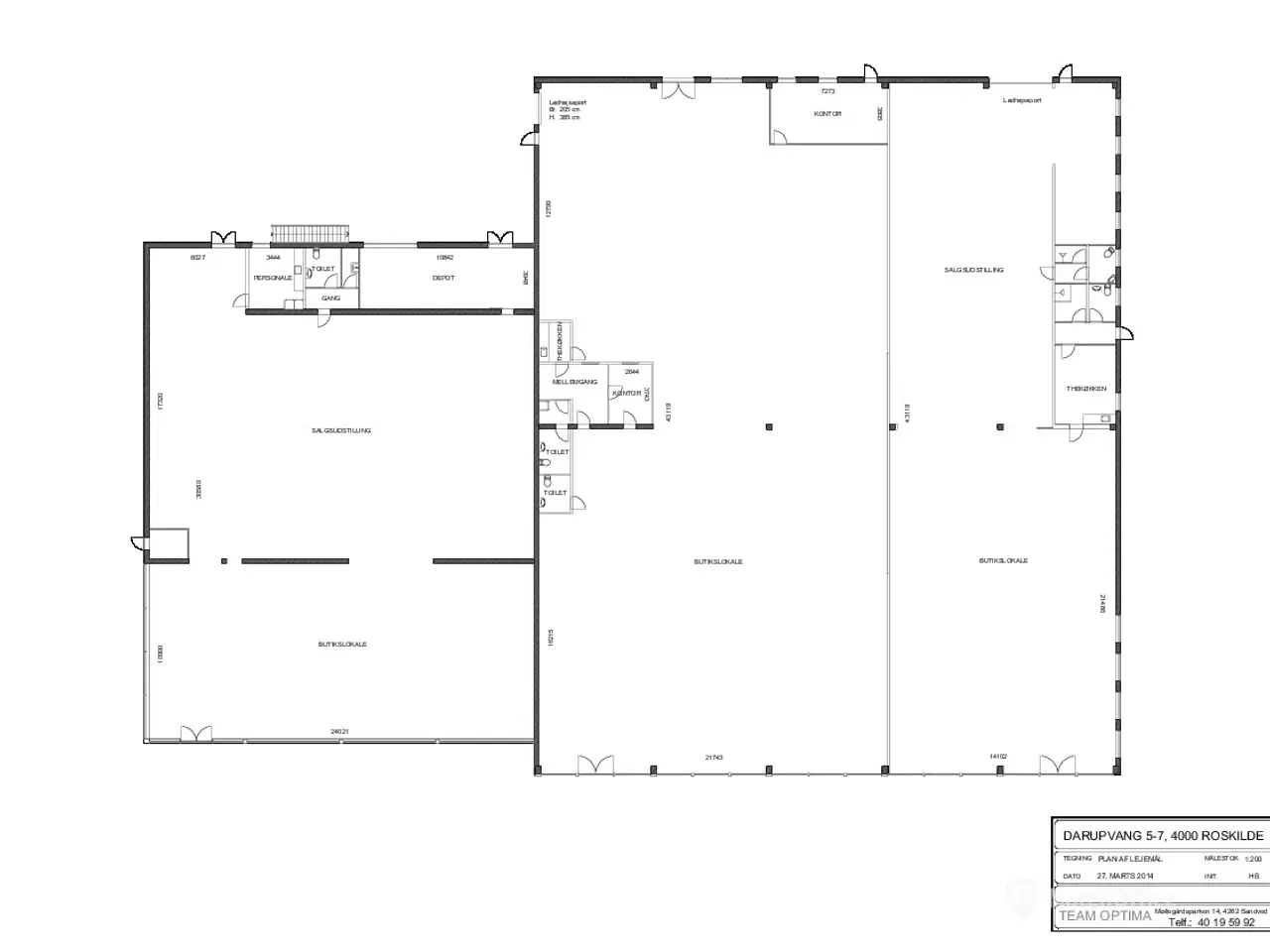
**Attraktiv investering med stabile lejere og udviklingspotentiale** Vi har hermed fornøjelsen at præsentere en veldrevet investeringsejendom med uudnyttet byggeret på 900 m2, beliggende særdeles synligt med facade mod Ringstedvej, hvor flere tusinde bilister passerer hver dag. Ejendommen ligger desuden tæt på til- og frakørsel til Holbækmotorvejen, hvilket giver let adgang til både lokalområder og motorvejsnettet. Om ejendommen kan oplyses: - Synlig beliggenhed – Høj trafikdækning med flere tusinde forbipasserende bilister hver dag, hvilket sikrer maksimal synlighed - Tæt på motorvejsforbindelser – Effektiv transportadgang til Holbækmotorvejen, som forbedrer tilgængeligheden for kunder og leverandører - Byggeret på 900 m² – Mulighed for yderligere udvikling og udnyttelse af ejendommes potentiale - Stabile lejere – Ejendommen har været fuldt udlejet siden 2018, og den ældste lejer har været i bygningen siden 2002 - God lejeindtægt – Stabil og attraktiv lejeindtægt med tre butikslejemål og udenomsarealer, som alle er udlejet til solide og pålidelige lejere - Udviklingspotentiale – Mulighed for at udvide og optimere ejendommens anvendelse - Professionel drift – Ejendommen drives professionelt af erfaren administrator - Opført i 1973 og tilbygget i 1977 – En velfungerende bygning med solid konstruktion og gode faciliteter - Gode parkeringsforhold – Befæstede parkeringspladser til både kunder og medarbejdere, hvilket gør ejendommen let tilgængelig Denne ejendom er ideel for investorer, der søger en stabil og sikker indtægt med et attraktivt udviklingspotentiale. Beliggenheden, de stabile lejere og de gode parkeringsforhold gør dette til en investering, der tilbyder både kortsigtet og langsigtet vækst. Kontakt os for yderligere information og fremvisning. Lejemålets energimærke er angivet til: C
Flere detaljer
























