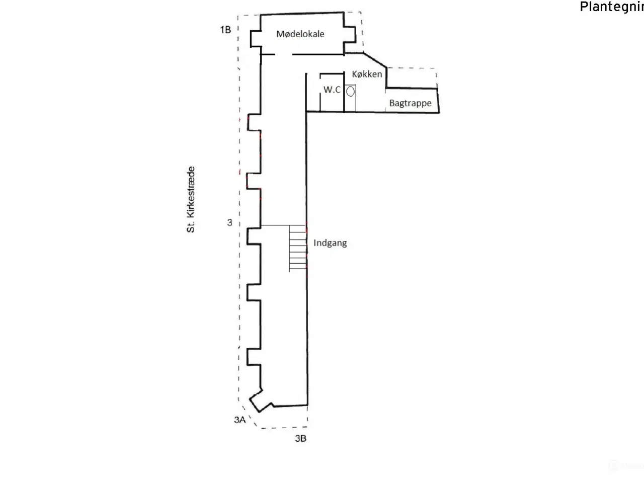
"Iværksætter-lejemål" i charmerende og fredet ejendom ved Storkespringvandet med "egen" café i ejendommen
14.900 kr.
Beboelsesvogne fra Simple Homes
Udlejning til bl.a. privatgenhusning - høj service og hurtig levering
UDLEJNING AF BEBOELSESVOGNE
Vi udlejer vogne, lifte, Mobile badeværelser, Mandskabsvogne og Kontor-/spisevogne
På den ultra centrale og eksklusive beliggenhed ved Storkespringvandet, udbydes fint, prisvenligt lejemål i strømpefabrikanten, Warburgs Hus fra 1798. - 149 m² på 4. sal - Facaderenoveret og fredet byejendom fra 1798 - ”Egen” café i ejendommen, Espresso House - Central placering ved Storkespringvandet, Illums, Hermés, Louis Vuitton og snart Gucci - Tæt på Nørreport St. og Gammel Strand metrost. - 75 m til Illums p-hus - Veldrevet ejendom og stabil, langsigtet udlejer Attraktiv månedlig husleje inkl. driftsudgifter og forbrug på kun kr. 19.590,- ekskl. moms.
Se annoncen hos forhandlerenFlere detaljer


























