Kokholm 1, 6000 Kolding,
Flotte kontorer med super god beliggenhed
18.667 kr.
Beboelsesvogne fra Simple Homes
Udlejning til bl.a. privatgenhusning - høj service og hurtig levering
UDLEJNING AF BEBOELSESVOGNE
Vi udlejer vogne, lifte, Mobile badeværelser, Mandskabsvogne og Kontor-/spisevogne
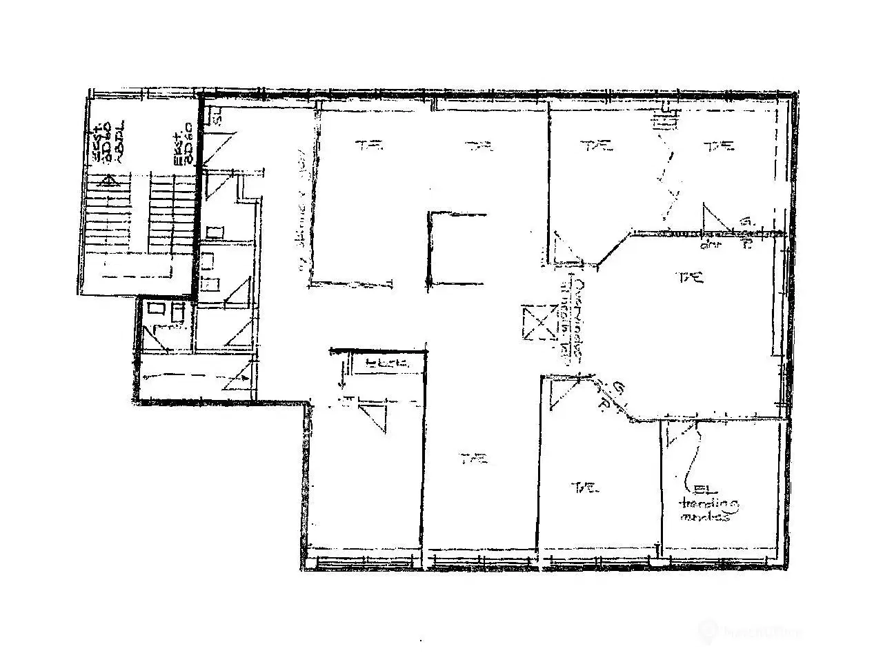
Lejemålet består af 2 toiletter, køkken med spiseplads, 5 separate kontorer og 2 åbne større kontorer. Placeringen lige ved motorvejstilkørslen, lige overfor Hotel Scandic er meget god. Mulighed for et par måneders gratis husleje. Lejemålets energimærke er angivet til: B
Se annoncen hos forhandleren
Flere detaljer
Lokalebasen.dk er Danmarks førende formidler af erhvervslejemål. Vi er en uafhængig portal, der samler danske erhvervslokaler af enhver slags, så du nemt kan få overblik over markedet.
Vi...















Ny
Ny




