Fleksibelt lejemål med kontor og lager/showroom
40 kr.
Beboelsesvogne fra Simple Homes
Udlejning til bl.a. privatgenhusning - høj service og hurtig levering
UDLEJNING AF BEBOELSESVOGNE
Vi udlejer vogne, lifte, Mobile badeværelser, Mandskabsvogne og Kontor-/spisevogne
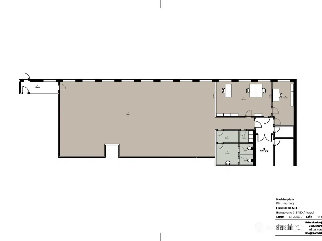
Et fleksibelt erhvervslejemål på 349 m² på Borupvang 2 i Allerød. Lejemålet er en del af en flerbrugerejendom og kombinerer kontor, lager og showroom, hvilket gør det velegnet til virksomheder med behov for alsidige rammer. Indretningen kan tilpasses efter behov med mulighed for kontorpladser langs vinduerne og kapacitet til op til ca. 20 medarbejdere. Lejemålet indeholder eget tekøkken, depotrum, to toiletter samt vareelevator. Ejendommen er beliggende i grønne omgivelser tæt på Allerød Station med gode parkeringsforhold og nem adgang for både medarbejdere og besøgende.let for både medarbejdere og samarbejdspartnere at komme til og fra lejemålet. Lejemålet egner sig særligt godt til mindre virksomheder, herunder onlinebaserede forretninger eller virksomheder med behov for lager- og showroomfaciliteter i kombination med kontor.
Flere detaljer
Om boligen
- Produkttype
- Erhvervslokaler















