Agerhatten 27B, indg.1, 1.tv+1.th+st.tv, Agerhatten 27
28.379 kr.
Beboelsesvogne fra Simple Homes
Udlejning til bl.a. privatgenhusning - høj service og hurtig levering
UDLEJNING AF BEBOELSESVOGNE
Vi udlejer vogne, lifte, Mobile badeværelser, Mandskabsvogne og Kontor-/spisevogne
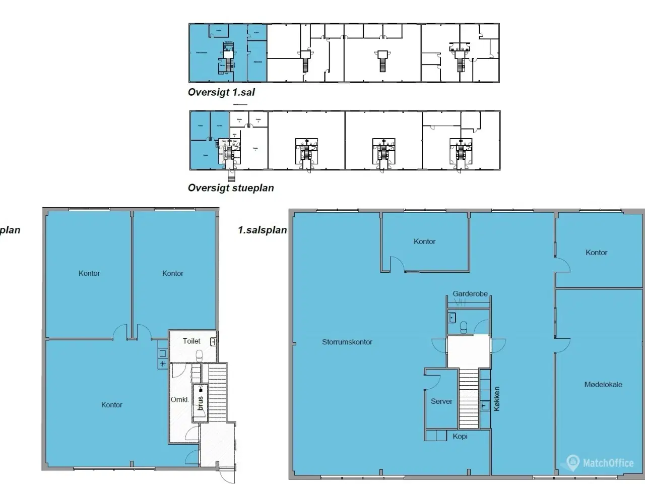
Beskrivelse af lejemålet: Lejemålet ligger Agerhatten 27B i den sydøstlige del af Odense, tæt på det fynske motorvejsnet. Lejemålet andrager 490 m² kontor fordelt på stue og 1. sal, og som primært består af åbent kontorlandskab, med flere separate kontorer/mødelokaler. Derudover er der et køkken/kantineområde og toiletfaciliteter på hver etage. Lejemålet har en rummelig og fleksibel planløsning, der kan tilpasses forskellige forretningsbehov. I lejemålet er der et skønt naturligt lysindfald, qua gennemlysningen fra de store vinduespartier på begge sider. Ejendommens udenomsarealer er primært udlagt til parkering, til rådighed for ejendommens brugere. Lejemålets nærmeste naboer er blandt andet Enabled Robotics, Printmarketing, agroled.dk m.fl. Lejemålets energimærke er angivet til: B
Flere detaljer






























