Butikslejemål på 861 m2 med mulighed for pladskrævende varegrupper
86.100 kr.
Beboelsesvogne fra Simple Homes
Udlejning til bl.a. privatgenhusning - høj service og hurtig levering
UDLEJNING AF BEBOELSESVOGNE
Vi udlejer vogne, lifte, Mobile badeværelser, Mandskabsvogne og Kontor-/spisevogne
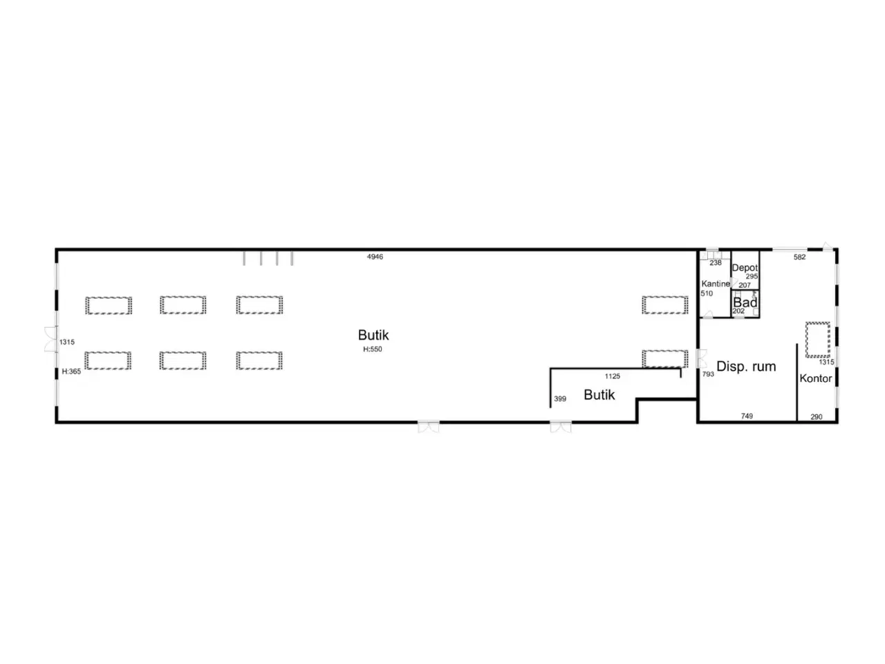
Lejemålet er et butikslejemål på i alt 861 m². Lejemålet er beliggende i en boksejendom. Ejendommen er opført i mursten med et tag af tagpap med hældning. Lejemålet opvarmes med fjernvarme. Lejemålet har et stort, aflangt butikslokale, som er yderst velegnet til formålet. Dertil er der et baglokale med både tekøkken, badeværelse, kontor og et lille depotrum. Alt i alt et super funktionelt lejemål. Lejemålet er ligeledes rigtig velholdt med fine klikgulve og troldtektbelagte lofter. Lejemålet er beliggende i et område hvor udvalgsvarer såvel som pladskrævende varegrupper er tilladt. Lejemålet er derved oplagt indenfor en lang række brancher og kan også anvendes til en kombination mellem detailhandel, lager og showroom. Desuden vil der også være mulighed for at drive café- og restaurationsvirksomhed. Lejemålet har senest været udlejet til en forhandler af sportstøj og udstyr. Ejendommen har energimærke C. Lejemålets energimærke er angivet til: C
Se annoncen hos forhandlerenFlere detaljer
Om boligen
- Produkttype
- Erhvervslokaler

























