Beboelsesvogn 3 personers - Eurowagon Årgang 2022
139.000 kr.
Beboelsesvogne fra Simple Homes
Udlejning til bl.a. privatgenhusning - høj service og hurtig levering
UDLEJNING AF BEBOELSESVOGNE
Vi udlejer vogne, lifte, Mobile badeværelser, Mandskabsvogne og Kontor-/spisevogne
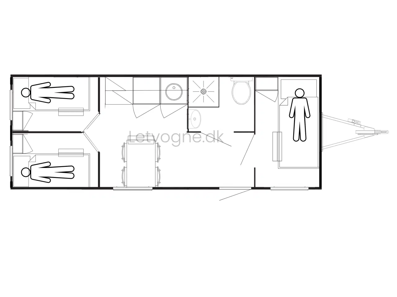
Beboelsesvogn til salg – Komfortabel og fleksibel løsning til byggebranchen Denne beboelsesvogn er en ideel løsning til midlertidig bolig, genhusning eller overnatning for medarbejdere på byggepladser. Vognen er funktionelt indrettet med køkken, badeværelse og to separate soverum, hvilket sikrer høj komfort og praktiske opholdsbetingelser. Der er mulighed for at indsætte køjesenge, så der kan sove op til 6 personer. Hos Letvogne.dk er denne beboelsesvogn som regel en lagervare, men prisen kan variere afhængigt af udstyr og specifikationer. Kontakt os for den aktuelle pris på 61 40 40 49. Indretning og faciliteter Køkken: ✔ Kogeplade ✔ Indbygningsovn ✔ Emhætte ✔ Køleskab ✔ Håndvask ✔ Bord og stole til 3 personer ✔ Dør mellem køkken og soveværelse Soveværelse: ✔ 80 cm senge ✔ Skabsplads ✔ Stikkontakter ✔ Mulighed for køjesenge Badeværelse: ✔ Toilet med kværn ✔ Brusekabine ✔ Håndvask ✔ Faste hylder Tekniske specifikationer ✔ Kapacitet: 3–6 personer ✔ Totalvægt: 2600 kg ✔ Egenvægt: 2070 kg ✔ Årgang: 2022 Tilslutninger ✔ 3/4" vandslange ✔ 1" afløbsslange ✔ Elkabel med 400 Volt / 16 Amp CEE stik ✔ Inkl. alle slanger, kabler og inventar Hvorfor vælge en beboelsesvogn fra Letvogne.dk? Hos Letvogne.dk er vi specialister i salg af beboelsesvogne til entreprenører, håndværkere og virksomheder, der har behov for en fleksibel og komfortabel opholdsløsning på byggepladser og andre arbejdsområder. Vi tilbyder nye og brugte beboelsesvogne fra Eurowagon, Scanvogn og Easywagon samt et bredt udvalg af andre vogntyper som kontorvogne, spisevogne, toiletvogne, miljøvogne, mandskabsvogne, køreplader og byggepladshegn. Kontakt os i dag på 61 40 40 49 for et tilbud eller rådgivning – vi skaffer vognen, du har brug for!
Se annoncen hos forhandlerenFlere detaljer
Om boligen
- Produkttype
- Beboelsesvogne

















