Kontor i nedlagt cigarfabrik – istandsættes i samarbejde med lejer
54.496 kr.
Beboelsesvogne fra Simple Homes
Udlejning til bl.a. privatgenhusning - høj service og hurtig levering
UDLEJNING AF BEBOELSESVOGNE
Vi udlejer vogne, lifte, Mobile badeværelser, Mandskabsvogne og Kontor-/spisevogne
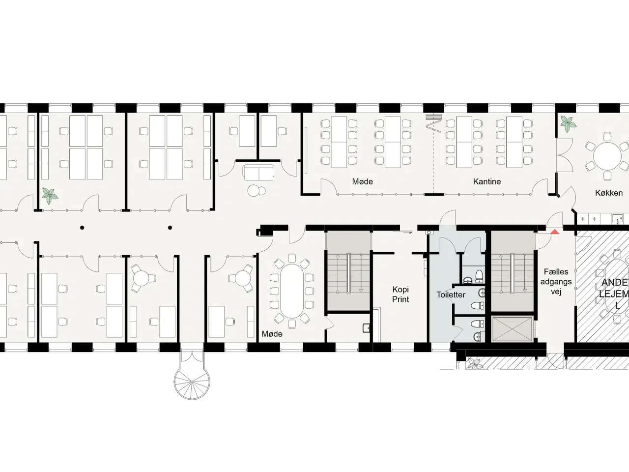
Ejendommen er oprindeligt opført som produktion for P. Wulffs cigarfabrik. Efterfølgende er ejendommen omdannet til kontorejendom med flere forskellige virksomheder repræsenteret indenfor blandt andet rådgivning, herretøj og showroom for baby brandet Cam Cam Copenhagen. Lejemålet er i dag indrettet med en kombination af mindre kontorer, møderum og storrumskontorer. Lejemålet trænger generelt til en istandsættelse og en gennemgribende renovering af hele lejemålet – hvorfor den kommende lejer vil få mulighed for at sætte sit præg på den fremtidige indretning. Lejemålet er beliggende i gåafstand til både Fasanvej metrostation, hvor linje M1 og M2 kører samt Aksel Møllers Have metrostation, hvor seneste metroudvidelse M3 kører fra. Skal man have en god kop kaffe eller en frokost, er der gode muligheder omkring svømmehalskvarteret, ved Aksel Møllers Have, hvor Café Den Blå Hund er den mest kendte. Lejemålets energimærke er angivet til: D
Se annoncen hos forhandlerenFlere detaljer




















