Kontor og/eller klinik i Herlev med stærk synlighed og fælles faciliteter
2.533 kr.
Beboelsesvogne fra Simple Homes
Udlejning til bl.a. privatgenhusning - høj service og hurtig levering
UDLEJNING AF BEBOELSESVOGNE
Vi udlejer vogne, lifte, Mobile badeværelser, Mandskabsvogne og Kontor-/spisevogne
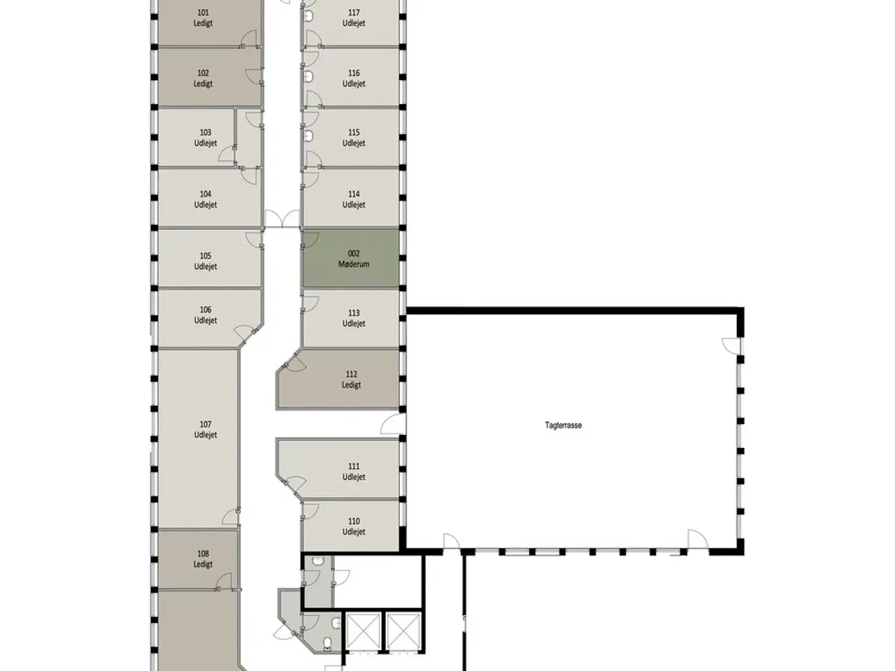
På 1. og 2. sal på Herlev Ringvej 2C udbydes mindre kontor- og kliniklejemål fra 19 til 109 m² i et velfungerende kontorfællesskab med gode fællesfaciliteter og central beliggenhed. Lejemålene fremstår lyse og indbydende og overtages nyistandsatte med nye gulve, lofter og LED-belysning. Her får I fleksible rammer, der kan tilpasses både enkeltmandsvirksomheder og mindre teams. **Et oplagt sundhedshus** Da der allerede er flere sundhedsrelaterede erhverv i ejendommen, ser vi et stort potentiale i at etablere et samlet sundhedshus. Lejemålene egner sig derfor særligt til: - Behandlere og terapeuter - Klinikker - Tandlægeklinik i de større lejemål - Sundhedsrelaterede rådgivere Samtidig er der også gode muligheder for klassiske kontorbrugere inden for administration, rådgivning og salg. **Velfungerende kontorfællesskab** Som lejer bliver I en del af et kontorfællesskab med adgang til fælles køkken og frokoststue, venteområde, mødelokaler, toiletfaciliteter samt en fælles tagterrasse. Ejendommen har desuden en præsentabel hovedtrappe med elevatorer direkte fra terræn til etagerne, hvilket sikrer nem adgang for både medarbejdere og besøgende. **Suverænt god beliggenhed i Herlev** Ejendommen ligger markant placeret i krydset mellem Herlev Hovedgade og Herlev Ringvej med direkte udsyn og nem adgang. Her får I: - Letbanestop ved hovedindgangen - Busforbindelser lige ved døren - Kort afstand til Herlev Bymidte og rådhus - Gode parkeringsmuligheder på terræn og i kælder En ideel placering for virksomheder, der ønsker synlighed og let adgang for både kunder og medarbejdere.
Se annoncen hos forhandlerenFlere detaljer













Ny
Ny
Ny



