Kontor helt i særklasse og tilmed på attraktiv beliggenhed
26.909 kr.
Beboelsesvogne fra Simple Homes
Udlejning til bl.a. privatgenhusning - høj service og hurtig levering
UDLEJNING AF BEBOELSESVOGNE
Vi udlejer vogne, lifte, Mobile badeværelser, Mandskabsvogne og Kontor-/spisevogne
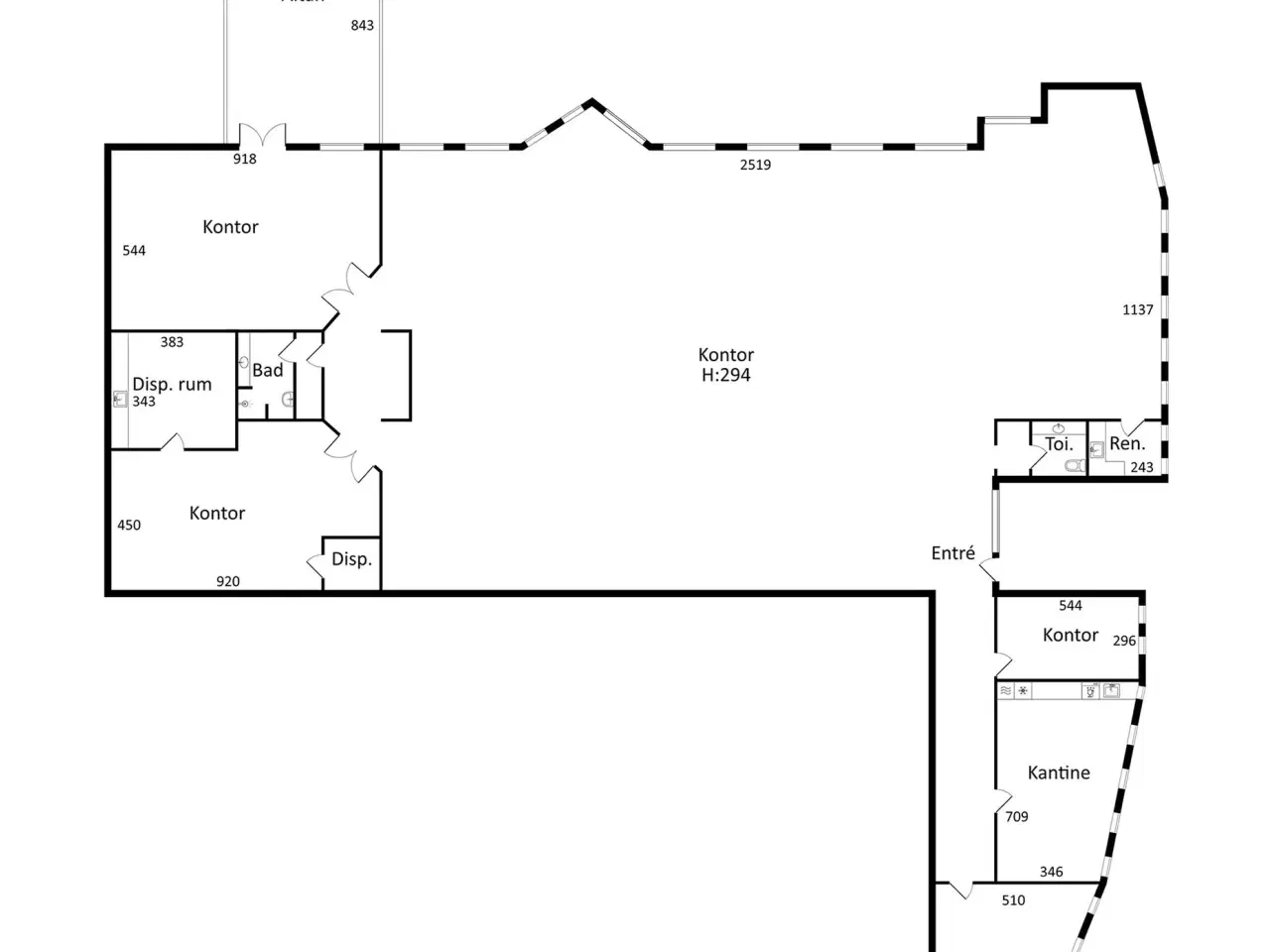
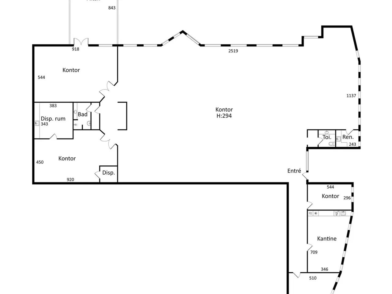
Stort kontor med super beliggenhed, tæt på centrum og motorvej. Dette kontor på 1. sal er i en klasse for sig, det er lyst, super flot og helt unikt. Lokalerne femstår attraktive og ideelle til virksomheder med brug for mange og fleksible kontorpladser, som kan indrettes efter formålet. Materialerne er af meget god kvalitet, der er massive mahognigulve, helt nye sorte gulvtæpper, unik belysning samt inventar fra UnoForm. Lejemålet giver endvidere adgang til stor overdækket terrasse, hvor frokosten kan nydes når vejret tillader det. Lejemålet indeholder: - Stort og regulært kontor med reception og plads til flere medarbejdere - 4 rum, som er velegnede til kontor, mødelokaler eller arkiv, det ene med direkte adgang til disponibelt rum - Køkken/kantine - Disponibelt rum - Toilet med bad - Toilet Der er gratis parkeringspladser foran ejendommen, og flere bagved. Lejemålet fremstår særdeles flot, nymalet og indflytningsklart.
Flere detaljer



















