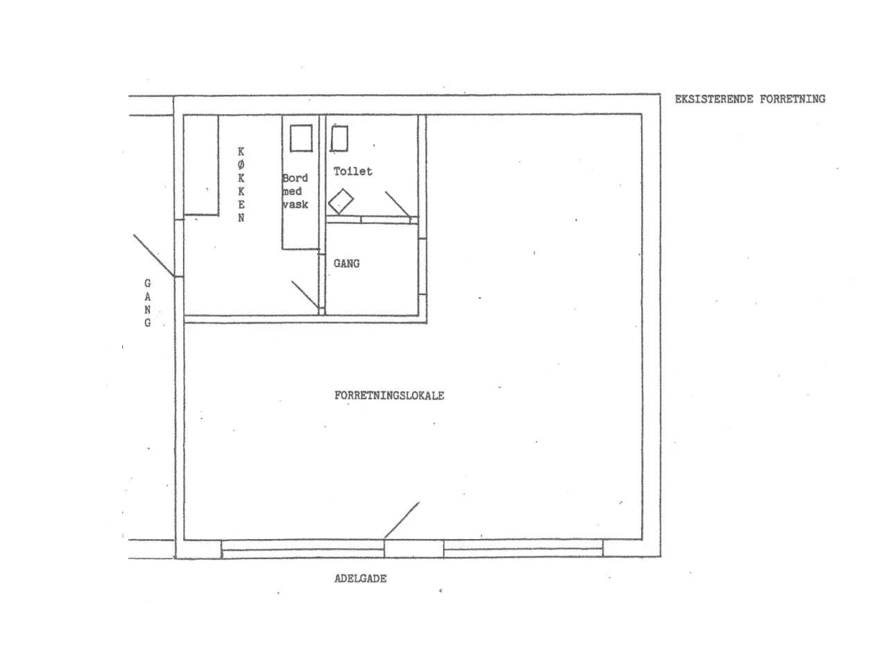
Adelgade 86, 9500 Hobro,
Frisør salon
6.000 kr.
Beboelsesvogne fra Simple Homes
Udlejning til bl.a. privatgenhusning - høj service og hurtig levering
UDLEJNING AF BEBOELSESVOGNE
Vi udlejer vogne, lifte, Mobile badeværelser, Mandskabsvogne og Kontor-/spisevogne
Med bedste placering udlejes frisør salon som har været drevet af samme ejer i 20 år. Lejemålet indeholder alt hvad der skal bruges for at starte en frisør salon op. Lejemålet er klar til overtagelse
Se annoncen hos forhandleren
Flere detaljer
Lokalebasen.dk er Danmarks førende formidler af erhvervslejemål. Vi er en uafhængig portal, der samler danske erhvervslokaler af enhver slags, så du nemt kan få overblik over markedet.  
Vi... 















