Kontor med plads og udviklingspotentiale med ideel beliggenhed
107.948 kr.
Beboelsesvogne fra Simple Homes
Udlejning til bl.a. privatgenhusning - høj service og hurtig levering
UDLEJNING AF BEBOELSESVOGNE
Vi udlejer vogne, lifte, Mobile badeværelser, Mandskabsvogne og Kontor-/spisevogne
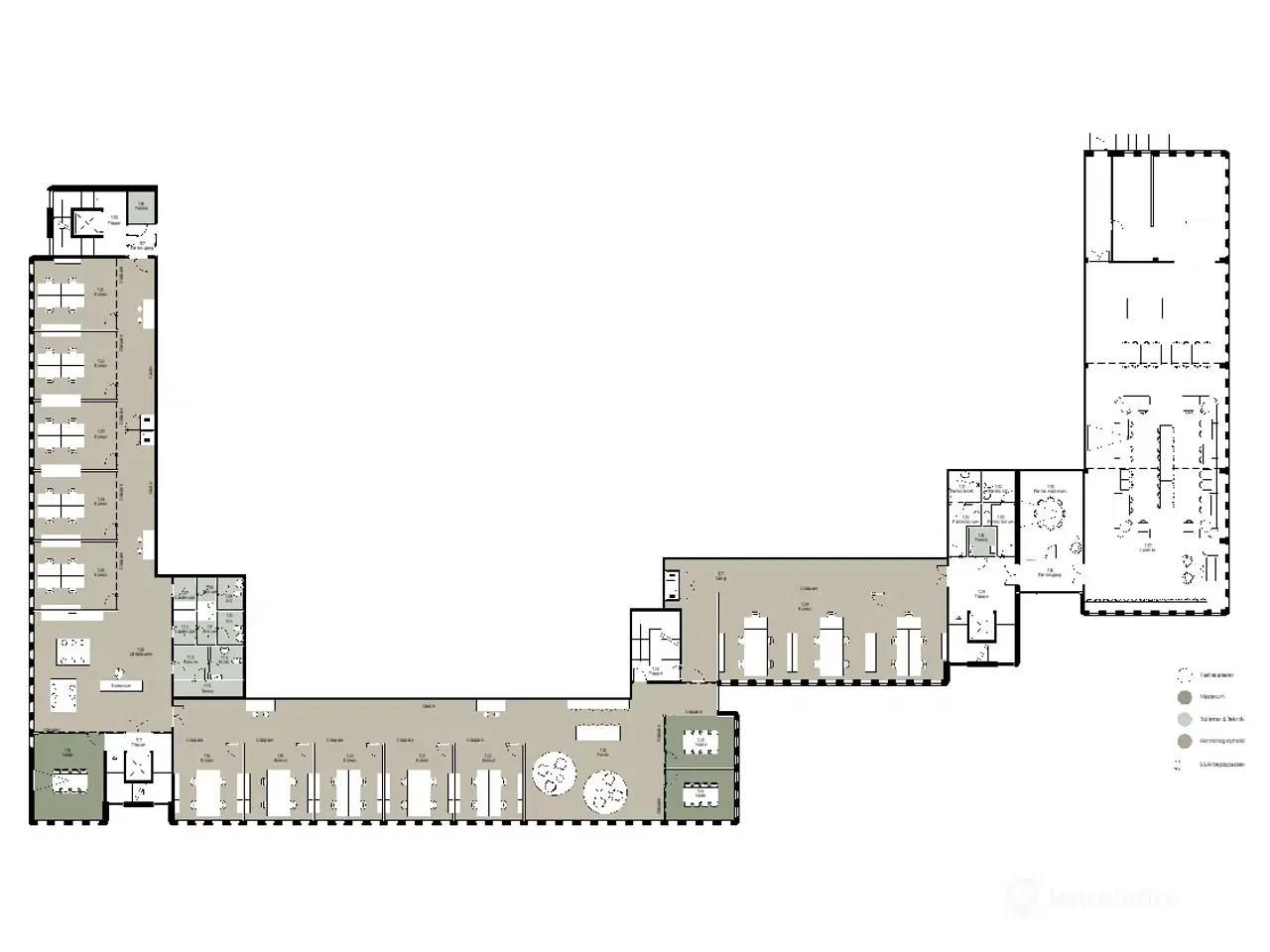
**Tag del i forvandlingen** Kontorlokalet på Lundtoftegårdsvej i Lyngby oser af potentiale og kvalitet. Det er ikke længe side, at vi overtog ejendommen, og dette lejemål er netop nu i gang med sin forvandling til smuk hvid svane. Billederne her er derfor referencefotos fra ejendommens 3. sal. Her kommer I til at få flotte nyrenoverede kontorer med sans for detaljen. Ved indflytning vil jeres nye kontorer og/eller kombineret showroom byde på massive fingerparket trægulve, komfortventilation, intelligent LED-belysning og akustiklofter. Den nuværende rumfordeling byder på en god variation mellem større fælleskontorer, mindre 1-4 mands kontorer med glasvægge. Kontorets midterzone har møderum og tekøkken. Afhængig af jeres behov kan indretningen og rumfordelingen tilpasses efter nærmere aftale – eksempelvis med flere åbne kontorzoner. **Når det betaler sig at dele** Hos Stensdal Group tror vi på, at et godt arbejdsmiljø er mere end bare kvalitetssikre kontorlokaler. Derfor har vi gjort lidt ekstra for at sikre en god medarbejdertrivsel. På Lundtoftegårdsvej bliver I nemlig en del af en flerbrugerejendom med solide fællesfaciliteter. Her kan jeres medarbejdere nyde godt af bemandet personalerestaurant og fitnesslokale med tilhørende omklædning og bad. Desuden er der gratis parkering rundt om hele ejendommen med tilhørende el-ladestandere. Billederne under er referencefotos fra personalerestaurant i en anden Stensdal-ejendom. **Suverænt godt forbundet** Beliggenheden for jeres nye lejemål på Lundtoftegårdsvej kan beskrives med to ord; godt forbundet! Med bus 150S kan jeres medarbejdere tage bussen direkte til og fra arbejde fra Nørreport St. på en halv time. Samtidig er S-tog tæt på ejendommen i Lyngby, og afkørsel til motorvejen er kun få hundrede meter væk. Nå ja, og så kan I glæde jer over letbanen, som fra 2025 byder på endnu en transportmulighed kun få hundrede meter fra den attraktive erhvervsejendom. Lejemålets energimærke er angivet til: A2010
Flere detaljer




















