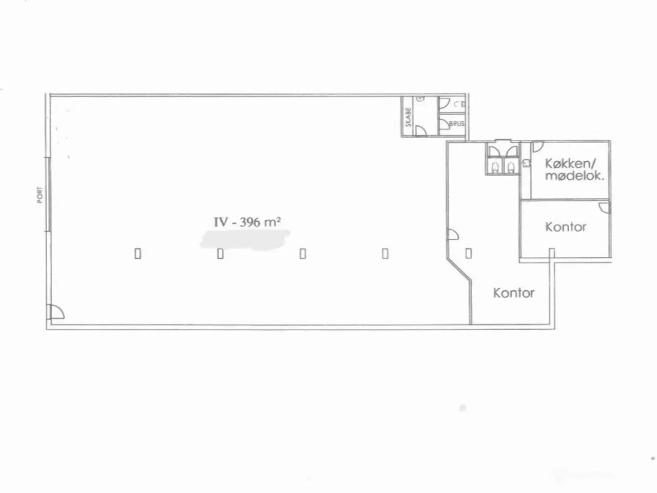
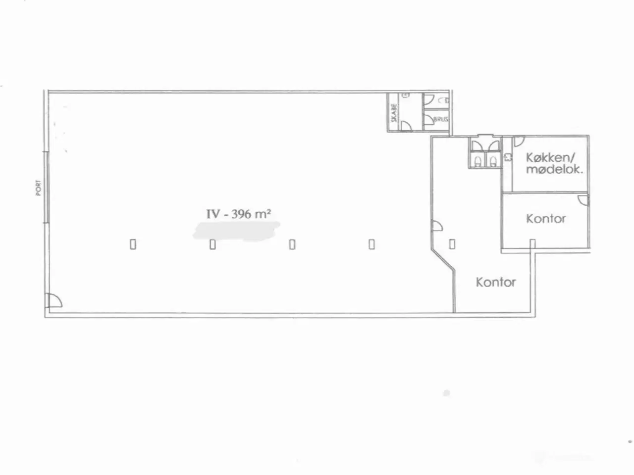
Stor hal med med ledhejseport. kontor, køkkenfaciliteter og toilet med bad.
13.068 kr.
Beboelsesvogne fra Simple Homes
Udlejning til bl.a. privatgenhusning - høj service og hurtig levering
UDLEJNING AF BEBOELSESVOGNE
Vi udlejer vogne, lifte, Mobile badeværelser, Mandskabsvogne og Kontor-/spisevogne
Ledig fra 1/9-26. Præsentabelt stort lager/produktionslejemål på i alt 396 m2. Lejemålet indeholder stor hal, 2 kontorer, tekøkken, toilet og bad. Der er en stor ledhejseport, som giver nem adgang til lager/produktionshal, da man kan bakke helt hen til port med lastbil/trailer mv. Lejemålet har mange anvendelsesmuligheder. Parkeringsplads medfølger til lejemålet. Lejen er inkl. driftsomkostninger, så kun el, vand og varme kommer oveni - og evt. andel af sne/saltning ved behov. Lejemålet opvarmes med fjernvarme og der er mange amp strøm til rådighed, hvis der er behov for dette. Busforbindelse lige uden for døren og kun 800 meter fra Herlev station.
Se annoncen hos forhandlerenFlere detaljer
Om boligen
- Produkttype
- Erhvervslokaler















