Hjembytte - Damagervej
5.300 kr.
Beboelsesvogne fra Simple Homes
Udlejning til bl.a. privatgenhusning - høj service og hurtig levering
UDLEJNING AF BEBOELSESVOGNE
Vi udlejer vogne, lifte, Mobile badeværelser, Mandskabsvogne og Kontor-/spisevogne
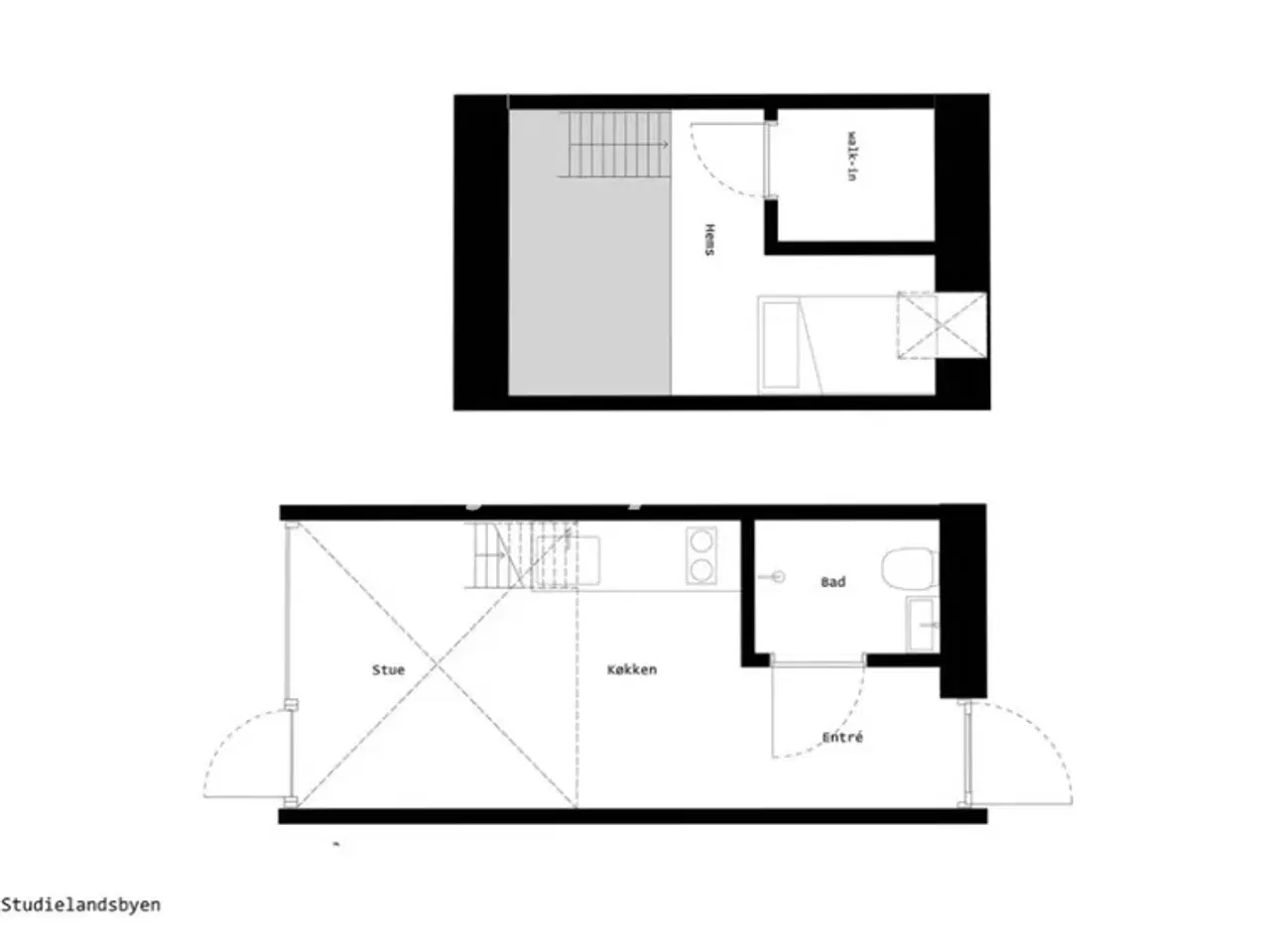
Dette er en annonce for lejlighedsbytte, hvor du bytter din lejebolig med en anden lejebolig. En dejlig lejlighed i studielandsbyen. (Du behøver ikke at være studerende) Lejlighed er lille i forhold til kvadratmeter men stor i brug og nem at gøre meget personlig alt efter din indretning. Vi har et fælleshus her ude hvor der er fællesspisning en gang om måneden og angementer nu og da man selv bestemmer om man vil deltage i. Husdyr er generelt ikke tilladt. Billederne er fra min nabos lejlighed men min er identisk
Se annoncen hos forhandlerenFlere detaljer
Om boligen
- Produkttype
- Lejligheder
- Boligareal
- 28 m²
- Antal værelser
- 1
- Etage
- 0












Ny
Ny
Ny
Ny
Ny
Ny
Ny
Ny