Butikslejemål med stor eksponeringsværdi i Ballerup Centret
Sælges
Beboelsesvogne fra Simple Homes
Udlejning til bl.a. privatgenhusning - høj service og hurtig levering
UDLEJNING AF BEBOELSESVOGNE
Vi udlejer vogne, lifte, Mobile badeværelser, Mandskabsvogne og Kontor-/spisevogne
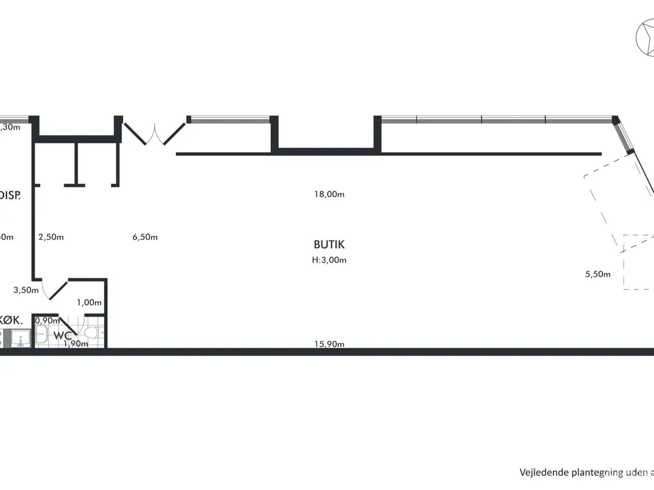
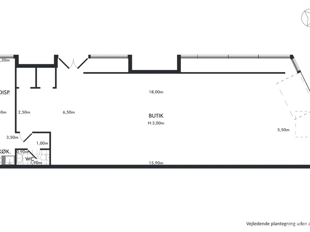
126 m² (brutto) regulært lejemål med god placering i Ballerup Stations Center. Lejemålet er beliggende ved siden af Kings & Queens og Tøjeksperten og lige ved cafétorvet. Lokalerne er velegnet til bl.a. mode, vinbutik, frisør, skønhedsklinik samt almindelig retail. Lejemålet fremstår uistandsat og istandsættes i samarbejde med ny lejer. Der er tekøkken og eget toilet i lejemålet. Der er egen indgang og store glaspartier samt lang facade med god eksponeringsmulighed. Kontakt os for fremvisning: 22258913. Lejemålets energimærke er angivet til: A2010
Se annoncen hos forhandlerenFlere detaljer














