Kontor i gennem-renoveret ejendom
32.608 kr.
Beboelsesvogne fra Simple Homes
Udlejning til bl.a. privatgenhusning - høj service og hurtig levering
UDLEJNING AF BEBOELSESVOGNE
Vi udlejer vogne, lifte, Mobile badeværelser, Mandskabsvogne og Kontor-/spisevogne
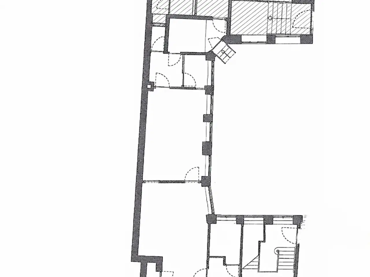
Lejemålet er på i alt 182 m² og er beliggende i stuen i den historiske bygning, der oprindeligt blev opført i 1732 og tegnet af arkitekten J.C. Krieger. Adgang til lejemålet sker direkte fra gaden, igennem en rundbuet portal med flotte dekorative indfatninger. Herefter fører en dør en direkte ind til lejemålet. Lejemålet er indrettet med flere rum i varierende størrelser. Her er der både plads til mødelokaler, et stort personale rum, samt flere flere muligheder for kontorpladser. Lejemålet rummer cirka 10 arbejdspladser afhængig af indretning. Lejemålet fremstår i smuk, herskabelig stil. Udlejer har udført en nænsom, men gennemgribende renovering i samarbejde med erfarne rådgivere, håndværkere samt Slots- og Kulturstyrelsen. Myndighedsprojektet har indledningsvis omfattet en dybdegående og grundig analyse af de originale materialer- samt farvevalg. Herunder hvilke moderne og langtidsholdbare løsninger, der kan anvendes. Med lejemålet følger også 3 udearealer, en hyggelig gård og 2 tagterrasser, hvor man kan nyde udsigten over Københavns mange spir og tårne. Beliggenhed Lejemålet er beliggende i det centrale København på den historisk prægede Nørregade. Området er i udkanten af det populære Latinerkvarter. I området finder man både den velkendte Vor Frue Kirke, Københavns Universitet samt flere gode hoteller. Området er kendt for de mange fredede samt bevaringsværdige ejendomme, der besidder en stor kulturhistorie. Der er i området flere grønne oaser samt parker, kulturliv, specialforretninger, high-street shopping samt forskellige uddannelsesinstitutioner. Offentlig transport er kun et stenkast derfra via Nørreport St. Herfra afgår der Metro, Regionaltog, S-tog samt flere centrale buslinjer. Københavns Kommune går i overvejelser om hvorvidt Nørregade skal omdannes til cykel- og gågade. Et sådan tiltag vil nedsætte trafikken væsentligt og bidrage til den hyggelige atmosfære omkring ejendommen.
Se annoncen hos forhandlerenFlere detaljer






Ny





