Dejlig isoleret og opvarmet hal uden søjler. God loftshøjde
17.510 kr.
Beboelsesvogne fra Simple Homes
Udlejning til bl.a. privatgenhusning - høj service og hurtig levering
UDLEJNING AF BEBOELSESVOGNE
Vi udlejer vogne, lifte, Mobile badeværelser, Mandskabsvogne og Kontor-/spisevogne
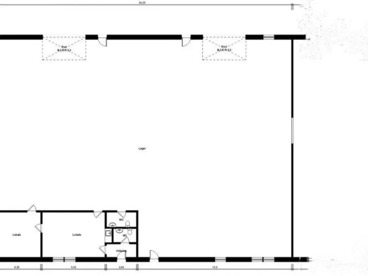
Flot isoleret hal, med 2 store elektriske porte samt 2 indgangsdøre for nem adgang i præsentabel ejendom. Egner sig godt til lager og produktion, hvor man samtidig kan have kontor. Der er udover hallen 2 toiletter med håndvask, et kontorlokale, samt et mandskabsrum og køkken. Hallen har et fint betongulv og troldtekt lofter - samt rigtig godt lysindfald fra ovenlys. Der er monteret nye døre og vinduer. Hallen opvarmes med el. Ejendommen ligger i Maribos erhvervsområde, tæt på motorvej, og indre by. Porte er bredde 3,8 M og højde 3,5 M
Flere detaljer













