Nyistandsat kontor i moderne flerbrugerejendom centralt på Østerbro – tæt på alt.
124.942 kr.
Beboelsesvogne fra Simple Homes
Udlejning til bl.a. privatgenhusning - høj service og hurtig levering
UDLEJNING AF BEBOELSESVOGNE
Vi udlejer vogne, lifte, Mobile badeværelser, Mandskabsvogne og Kontor-/spisevogne
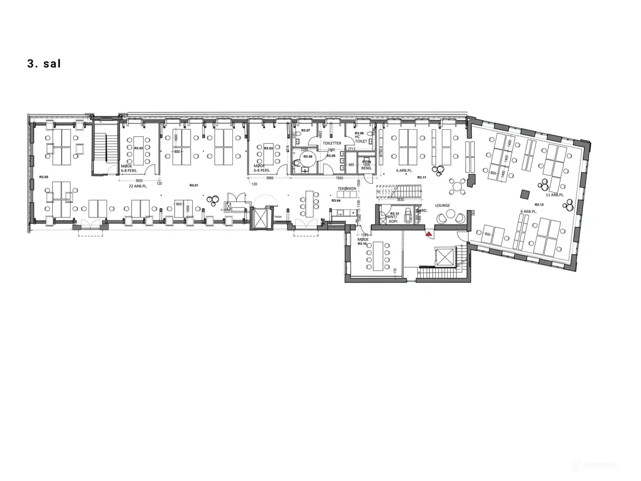
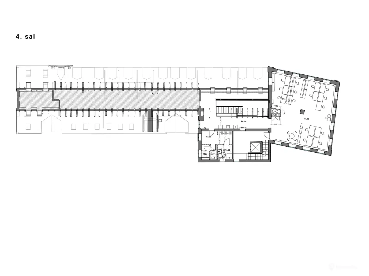
**Kontorlejemål i rå og moderne stil med fritlagte bjælker og synlige installationer** I karakteristisk rød murstensejendom centralt på Østerbro, udbydes 1.034 m<sup>2</sup> nyistandsatte kontorlokaler med en særdeles god udnyttelse af kvadratmeterne. Lejemålet er fordelt på to etager med hhv. 777 m<sup>2</sup> og 257 m<sup>2</sup>, som er forbundet via intern trappe og indrettet med åbne storrumsmiljøer samt mødefaciliteter. Lejemålet fremstår lyst og indbydende med lyse plankegulve, fritlagte bjælker og hvide tekøkkener. Lejemålet har mange fine detaljer, såsom rå murstensvæg med vinduer i sorte smedejernsrammer, samt synlig ventilation og køl. Lejemålets toiletkerne er ligeledes nyrenoveret, og der er etableret bad på begge etager. Som lejer i Masnedøgade 22-24 er der endvidere adgang til fælles kantine og mødefaciliteter, ligesom der er øvrige fællesområder, herunder tagterrasse med en mageløs udsigt over byens tage. Et indflytningsklart lejemål i høj kvalitet og med hurtig adgang til metro, S-tog, bus samt Lyngbyvejen. Lejemålets energimærke er angivet til: C
Flere detaljer

























