656m² lager og kontor i populært erhvervsområde
32.581 kr.
Beboelsesvogne fra Simple Homes
Udlejning til bl.a. privatgenhusning - høj service og hurtig levering
UDLEJNING AF BEBOELSESVOGNE
Vi udlejer vogne, lifte, Mobile badeværelser, Mandskabsvogne og Kontor-/spisevogne
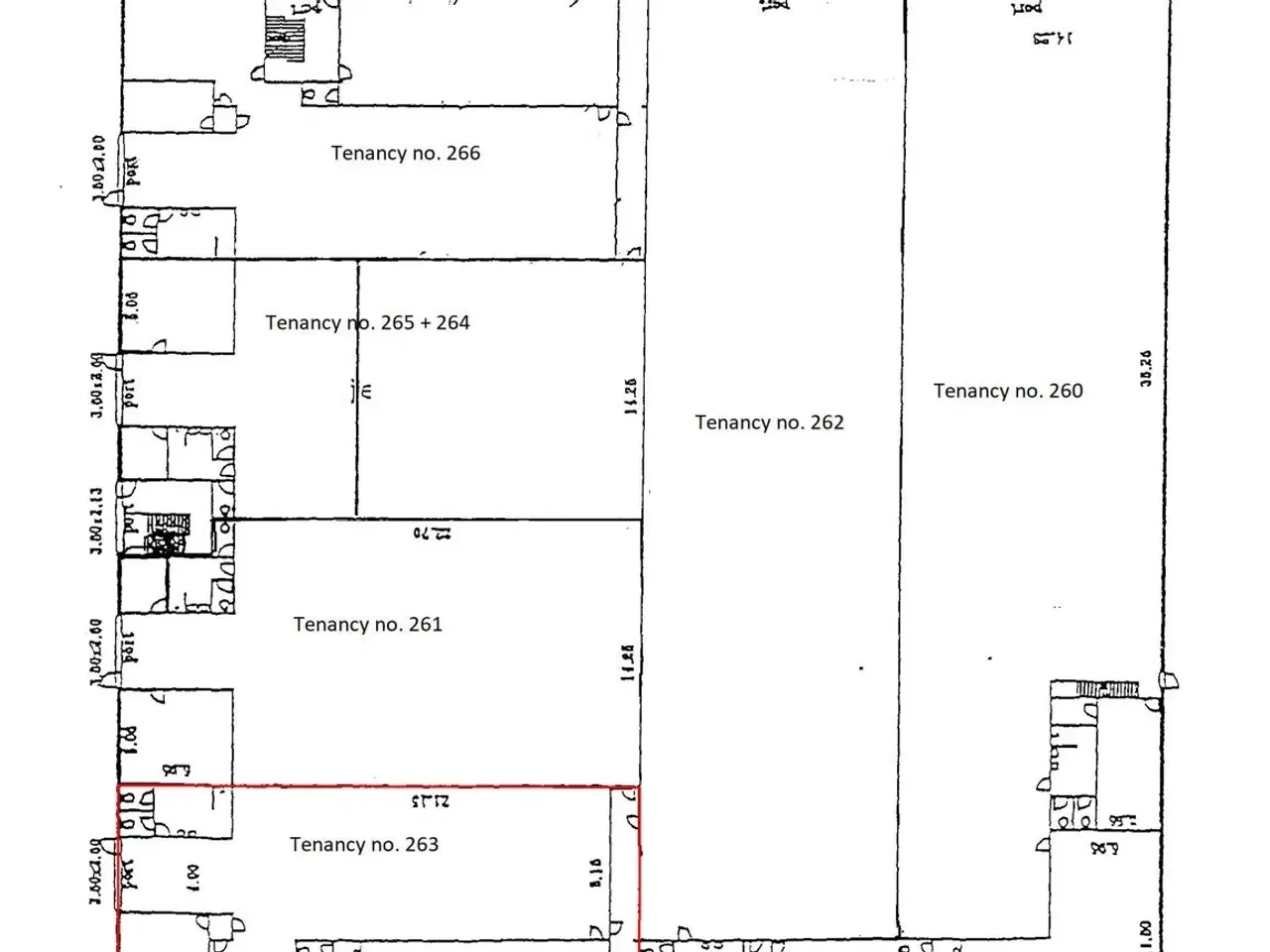
Lejemålet er på samlet 656m² som er fordelt på hhv. 389m² lager i stuen, et indskudt lager på 136m² og 131m² kontor på første sal. Lageret i stuen er opdelt med et højloftet areal og lavloftet areal såvel som et mindre kontorafsnit. Der er ovenlys i lagerdelen og med en frihøjde på over fire meter så er der ligeledes mulig for at optimere gulvarealet. Lejemålet indeholder deslige toilet og tekøkken. Størrelsen, layoutet og indretningen gør lejemålet oplagt til håndværkere, handel- og transportvirksomheder, let produktion eller servicevirksomheder som skal bruge lager og kontor til 5-10 personer. Lageret tilgås via en ledhejseport. Udenomsarealet er primært dedikeret til p-pladser og vare af-og pålæsning. **Området:** Baldersbuen 27 er beliggende i et af Hedehusenes mest veletablerede og eftertragtede erhvervsområder. Området er kendetegnet ved sin optimale infrastruktur, der gør det til et naturligt knudepunkt for transport- og logistikoperatører såvel som mindre håndværkervirksomheder. Lejemålets ligger i kort afstand til Holbækmotorvejen (rute 21) og Motorring 4, hvilket sikrer hurtig adgang til hele Storkøbenhavn samt resten af Sjælland. Københavns centrum kan nås på ca. 25 minutter. Hertil kommer nærheden til Hedehusene Station og de gode busforbindelser, som gør det nemt for medarbejdere at komme til og fra adressen med offentlig transport. Lejemålets energimærke er angivet til: B
Flere detaljer
Om boligen
- Produkttype
- Erhvervslokaler


































