Ferrarivej 12, 7100 Vejle,
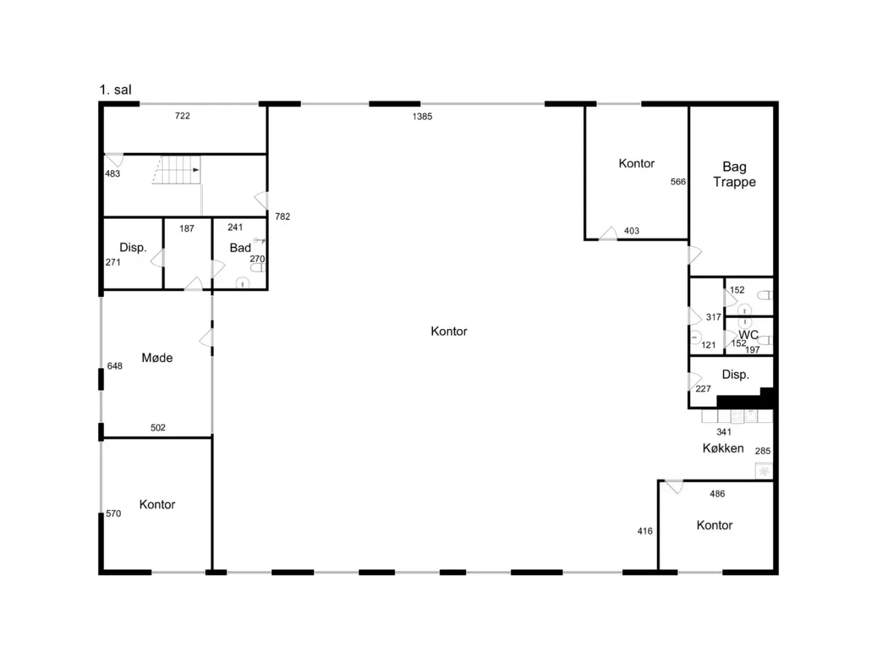
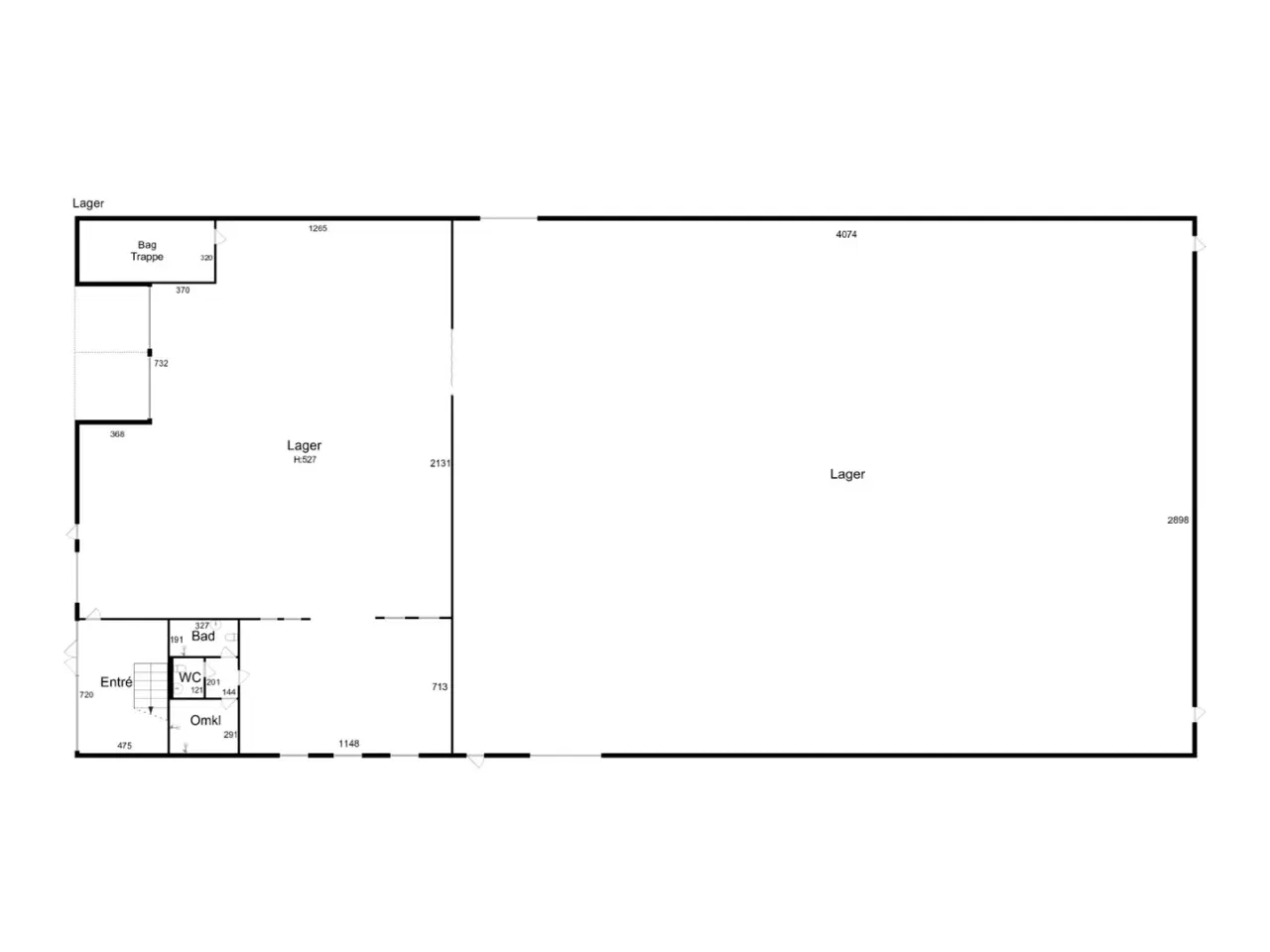
1.700 m2 lager samt 550 m2 kontor
97.500 kr.
Beboelsesvogne fra Simple Homes
Udlejning til bl.a. privatgenhusning - høj service og hurtig levering
UDLEJNING AF BEBOELSESVOGNE
Vi udlejer vogne, lifte, Mobile badeværelser, Mandskabsvogne og Kontor-/spisevogne
Rigtigt flot lejemål med lager og kontor på 1. sal. Der er mulighed for at leje mere kontor til. Der er 2 stk. rampeporte og 2 almindelige porte. OBS: Lejemålet er først ledigt fra oktober 2026
Se annoncen hos forhandleren
Flere detaljer
Lokalebasen.dk er Danmarks førende formidler af erhvervslejemål. Vi er en uafhængig portal, der samler danske erhvervslokaler af enhver slags, så du nemt kan få overblik over markedet.
Vi...



























