Lyse og rummelige lokaler med udsigt til vandet
48.371 kr.
Beboelsesvogne fra Simple Homes
Udlejning til bl.a. privatgenhusning - høj service og hurtig levering
UDLEJNING AF BEBOELSESVOGNE
Vi udlejer vogne, lifte, Mobile badeværelser, Mandskabsvogne og Kontor-/spisevogne
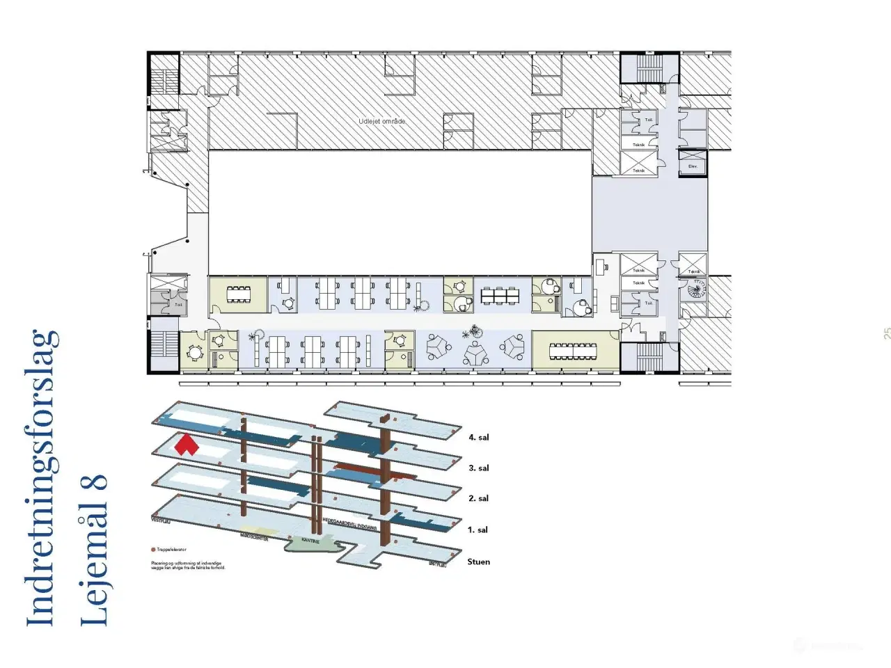
Velkommen ombord i Globetrotter Huset. Et energigivende og rummeligt kontor med en unik beliggenhed tæt på alt, du har brug for. Huset er det gamle SAS-domicil fra 80’erne, og historikken mærkes i indretningen og husets atmosfære. Globetrotter Huset er derfor den perfekte kontorplads på Amager for dig, som ønsker at skabe en velfungerende arbejdsplads for dine medarbejdere. Ejendommen ligger tæt placeret i forhold til metroen, Københavns Lufthavn, Øresundsbroen og motorvejsnettet. Ved hovedindgangen træder du ind i receptionen, som altid står klar til at tage imod dig. I ejendommens kerne finder du fællesarealer såsom loungeområder, café, bad, omklædning og kantine samt seks mødelokaler med mulighed for forplejning. Vi har i øjeblikket lyse og rummelige kontorer i størrelsen 494 - 1.187 m². Lejemålene er nyistandsatte og indrettet med storrum, cellekontorer eller en kombination. I alle lejemålene er der ventilation med køl, som er med til at sikre et godt indeklima. I ejendommens kerne finder du fællesarealer såsom loungeområder, café, bad, omklædning og kantine samt seks mødelokaler med mulighed for forplejning. Lejemålets energimærke er angivet til: B
Flere detaljer




































