Helmerhus - et vartegn midt i hjertet af København
93.275 kr.
Beboelsesvogne fra Simple Homes
Udlejning til bl.a. privatgenhusning - høj service og hurtig levering
UDLEJNING AF BEBOELSESVOGNE
Vi udlejer vogne, lifte, Mobile badeværelser, Mandskabsvogne og Kontor-/spisevogne
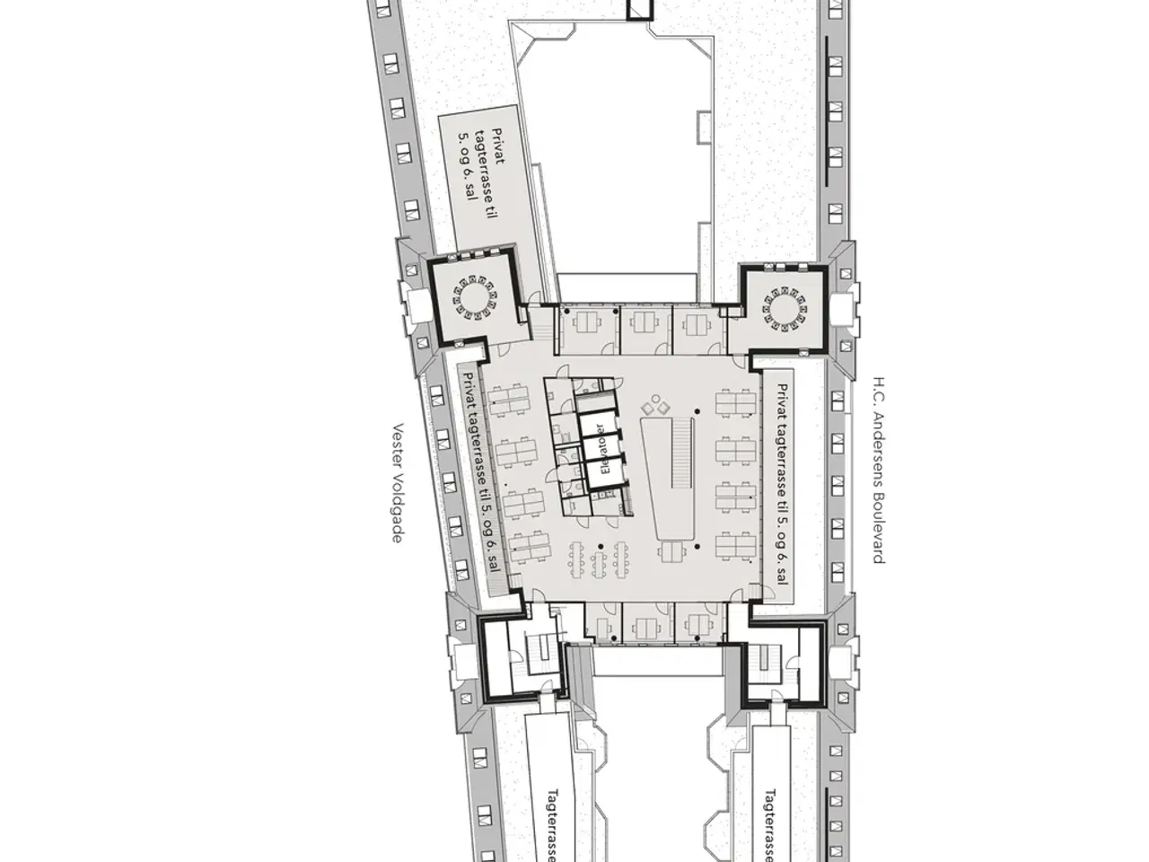
Nu udbydes eksklusive kontorlejemål fra 433 m² til 6.419 m² i Helmerhus, lige ved Rådhuspladsen. Ejendommen byder på en bemandet reception ved hovedindgangen på Vester Voldgade, som drives af Ordnung. Her er desuden mulighed for deltagelse i fælles kantine samt leje af større mødelokaler i ejendommen. Lejemålene på 4. etage har alle forskellig indretning, og her tilbydes lejemål fra 433 m² til 2.843 m². Her kan I glæde jer til fælles tagterrasse, og overalt er der anvendt en smagfuldt sammensat farvepalette, flotte rillede radiatorskjulere, egetræsgulve, stuklofter, nye vinduer, nye toiletkerner og tekøkkener. Lejemålene får desuden køl- og ventilation. Alt er lavet i et kvalitetsniveau som sjældent ses. Lejemålet på 5. og 6. etage sender tankerne i retning af et loft i NY med udsigt til Central Park. Her er beliggenhed og udsigt udskiftet med Rådhuspladsen og en sublim udsigt over byens tårne fra lejemålets private tagterrasse. Mulighed for at deltage i fælles kantine samt leje større mødelokaler i ejendommen efter behov. Ejendommen istandsættes med et stort fokus på bæredygtighed, bl.a. genanvendes eller videresælges mange af ejendommens oprindelige materialer. Helmerhus er præcertificeret med DGNB Sølv, og ejendommens energimærke bliver fornyet og forbedret efter istandsættelsen og forventes at nå energimærke B. En kort gåtur fra Tivoli, Københavns Hovedbanegård, Strøget og direkte forbindelse til M3 og M4 Cityringen. Helmerhus ligger uden tvivl lige i centrum af byen, men er på grund af de store hovedveje også let tilgængeligt i bil. Der er gode parkeringsmuligheder i de mange parkeringshuse i nærområdet. **Highlights:** - Førsteklasses kontorlokation i København - Metro, S-tog og alt andet lige om hjørnet - Private tagterrasser og altaner - Præcertificeret med DGNB Sølv - Energimærke forventes at blive opgraderet til B efter istandsættelse - Langsigtet investeringshorisont med fokus på kvalitetsmaterialer - Gennemgribende istandsættelse fra A til Z - alle overflader, tekøkkener og toiletter samt tekniske installationer er nye, herunder et helt nyt køle- og ventilationssystem Lejemålets energimærke er angivet til: E
Se annoncen hos forhandlerenFlere detaljer
Om boligen
- Produkttype
- Erhvervslokaler

































Ny
Ny




