Gul&Gratis - dit online marked med salg af nyt og brugtHjembytte - Brandskildeparken | København - GulogGratis.dk
Frederiksborggade 15 2. og 3. sal , 1360 København

Hjembytte - Brandskildeparken

7.983 kr.

Dette er en annonce for lejlighedsbytte, hvor du bytter din lejebolig med en anden lejebolig. Afdelingen Baunehøj hører under Stevns Boligselskab (DAB) og består af rækkehuse, som er idyllisk beliggende ud til grønne områder, i udkanten af Hårlev. Til hver enkelt rækkehus hører en have og der er mulighed for fibernet. Afdelingen har et grønt fællesområde hvor der er en legeplads.

Se annoncen hos forhandleren

Flere detaljer

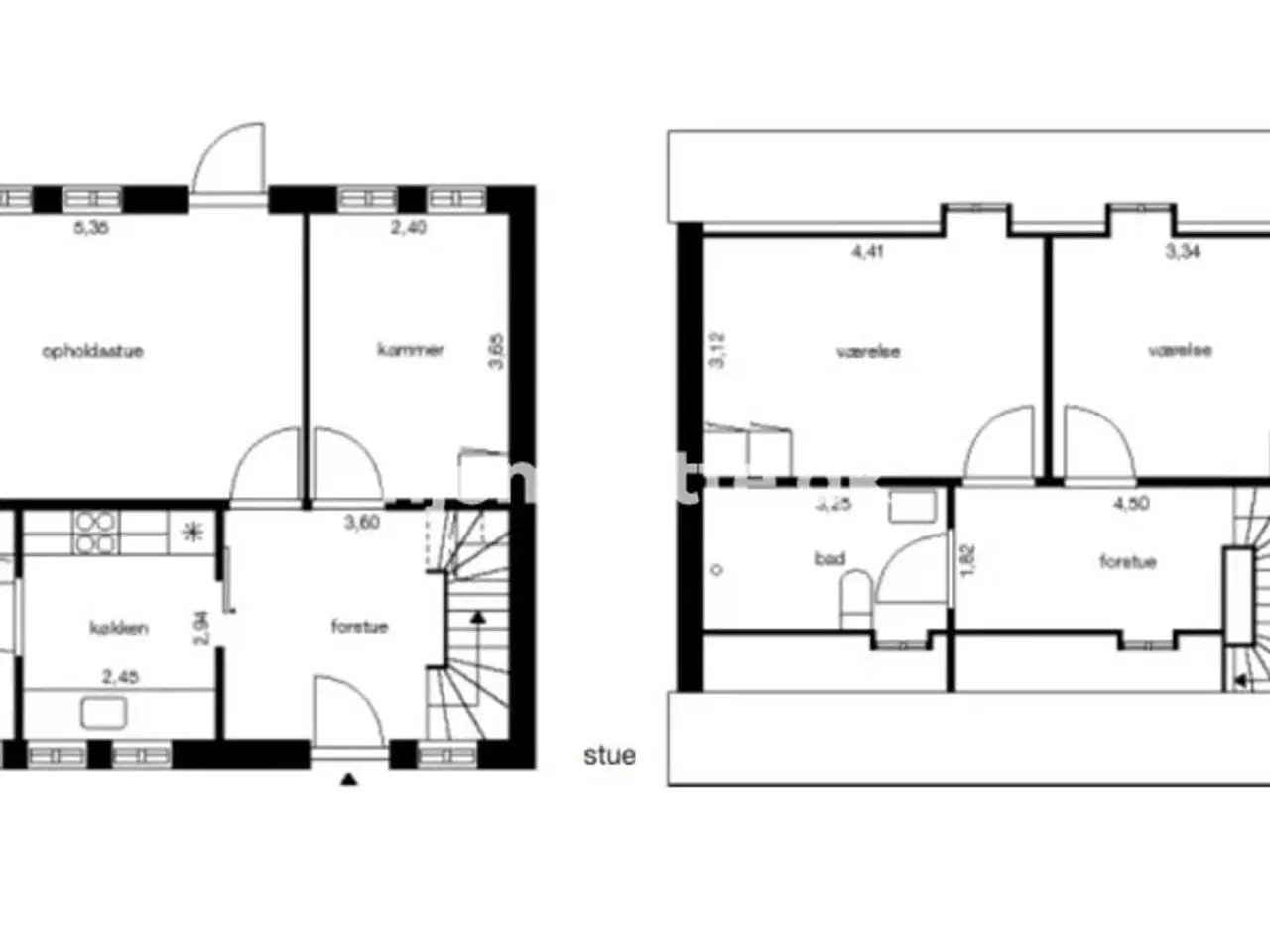
    Om boligen

    1. Produkttype
      Lejligheder
    2. Boligareal
      111 m²
    3. Antal værelser
      4
    4. Etage
      0
    Vi hjælper hele Danmark med at finde nye boliger. Et lejlighedsbytte er ofte en af de hurtigste løsninger, når du skal finde en ny lejebolig. Undgå boligkøer og lange ventetider. På Hjembyt...
    Hjembytte.dk

    Hjembytte.dk

    Lignende annoncer