Central beliggende butik Farum Hovedgade 48A
14.117 kr.
Beboelsesvogne fra Simple Homes
Udlejning til bl.a. privatgenhusning - høj service og hurtig levering
UDLEJNING AF BEBOELSESVOGNE
Vi udlejer vogne, lifte, Mobile badeværelser, Mandskabsvogne og Kontor-/spisevogne
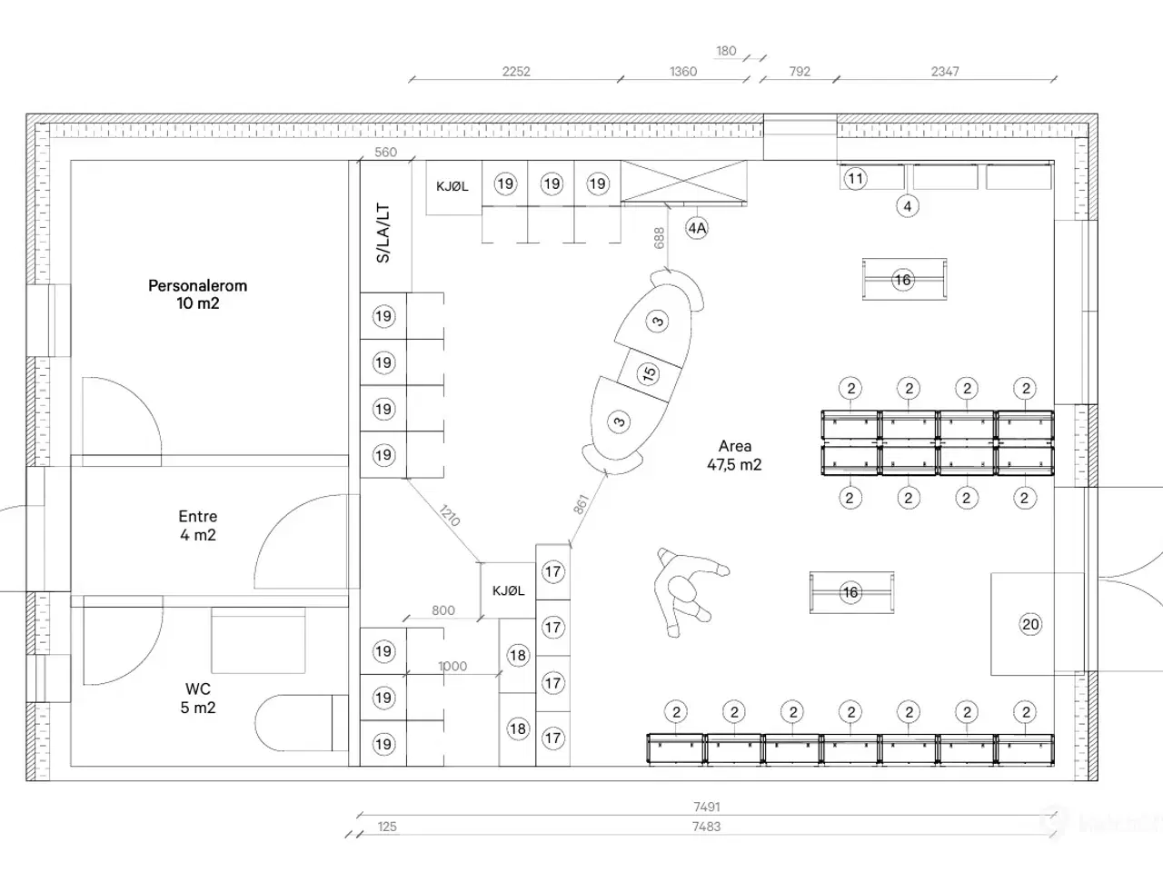
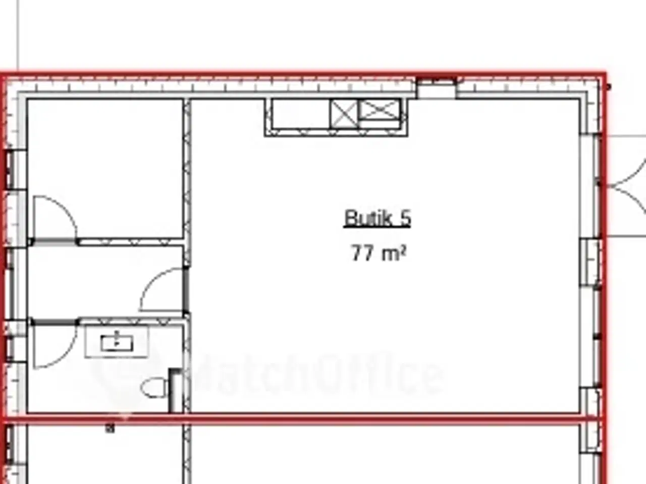
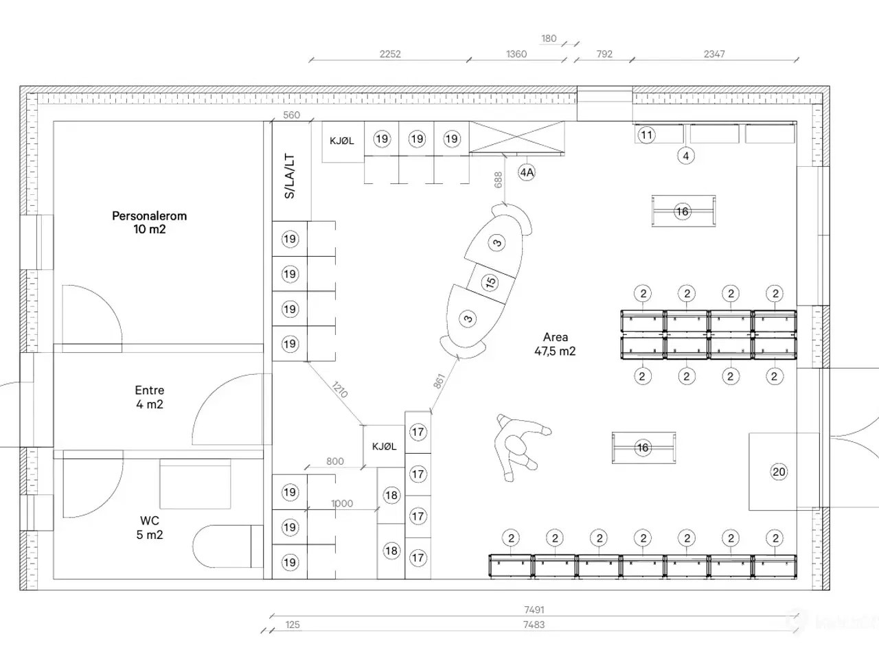
Velbeliggende erhvervslokale på Frodes Plads i et attraktivt og aktivt handelsområde. Lejemålet er beliggende i en moderne ejendom, der er nyopført i 2021, og fremstår derfor i flot og velholdt stand. Lokalet egner sig til mange typer erhverv såsom butik, klinik, showroom eller kontor. De høje lofter giver en rummelig og indbydende atmosfære samt gode indretningsmuligheder. Det samlede areal udgør 77 m² og er indrettet med et stort og lyst hovedlokale på ca. 47 m². Derudover indeholder lejemålet et personalerum med køkken på ca. 10 m² samt toilet på ca. 5 m². Planløsningen gør lokalet funktionelt og fleksibelt til mange forskellige typer erhverv. Ejendommen har en særdeles god synlighed og ligger centralt på Frodes Plads med adgang til hele 75 gratis parkeringspladser for kunder og medarbejdere. Her er ingen parkeringsbøder eller tidsregistrering, hvilket gør det nemt og bekvemt for besøgende. I nærområdet findes en række stærke naboer, herunder Danske Bank, Home, REMA 1000 og Restaurant Paullée, som alle bidrager til god aktivitet og kundestrøm i området. Derudover er der kun ca. 450 meter til Farum Station med både tog- og busforbindelser, hvilket giver nem adgang for både kunder og ansatte. Et moderne og indbydende erhvervslokale med mange anvendelsesmuligheder - skal opleves.
Se annoncen hos forhandlerenFlere detaljer






















