Kontorlejemål med massivt lysindfald i tidligere industribygning
35.700 kr.
Beboelsesvogne fra Simple Homes
Udlejning til bl.a. privatgenhusning - høj service og hurtig levering
UDLEJNING AF BEBOELSESVOGNE
Vi udlejer vogne, lifte, Mobile badeværelser, Mandskabsvogne og Kontor-/spisevogne
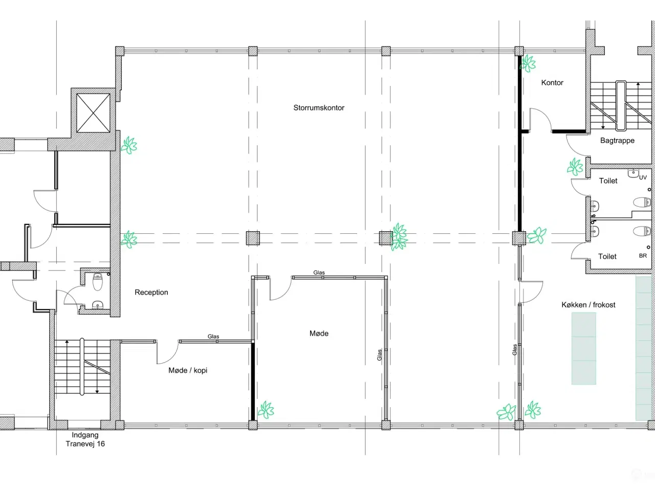
**Lyst kontormiljø med fritlagte betondragere og industrielle undertoner** Lejemålet er beliggende i en tidligere industribygning, der er blevet gennemgribende moderniseret for få år siden. Ejendommen fremstår med sin hvide facade og synlige lodrette beton-dragere samt store vinduespartier imødekommende for den lejer, der søger kontorlokaler med kant i det gamle industrikvarter i København NV. Lejemålet fremtræder med et råt look med det oprindelige industrigulv, hvor man både kan se og føle tidligere tiders aktivitet i lokalerne, som et attraktivt element. De store vinduespartier sikrer et massivt lysindfald til alle arbejdsstationer og møderum, mens de lydabsorberende troldtektlofter sikrer et behageligt arbejdsmiljø. Lejemålet er indrettet som et stort åbent og effektivt kontormiljø, to mødelokaler samt et større afskærmet spiseområde, hvor medarbejderne kan nyde frokosten eller en kop kaffe i løbet af arbejdsdagen. I den bagerste del af lejemålet findes et teknik- og depotrum samt toiletter. Glasvægge til mødelokalerne og spiseområdet sikrer transparens på tværs af lejemålet og giver derved en god sammenhængskraft i lejemålet. Lejemålets energimærke er angivet til: C
Flere detaljer




















