Kontorlejemål med attraktiv leje
25.000 kr.
Beboelsesvogne fra Simple Homes
Udlejning til bl.a. privatgenhusning - høj service og hurtig levering
UDLEJNING AF BEBOELSESVOGNE
Vi udlejer vogne, lifte, Mobile badeværelser, Mandskabsvogne og Kontor-/spisevogne
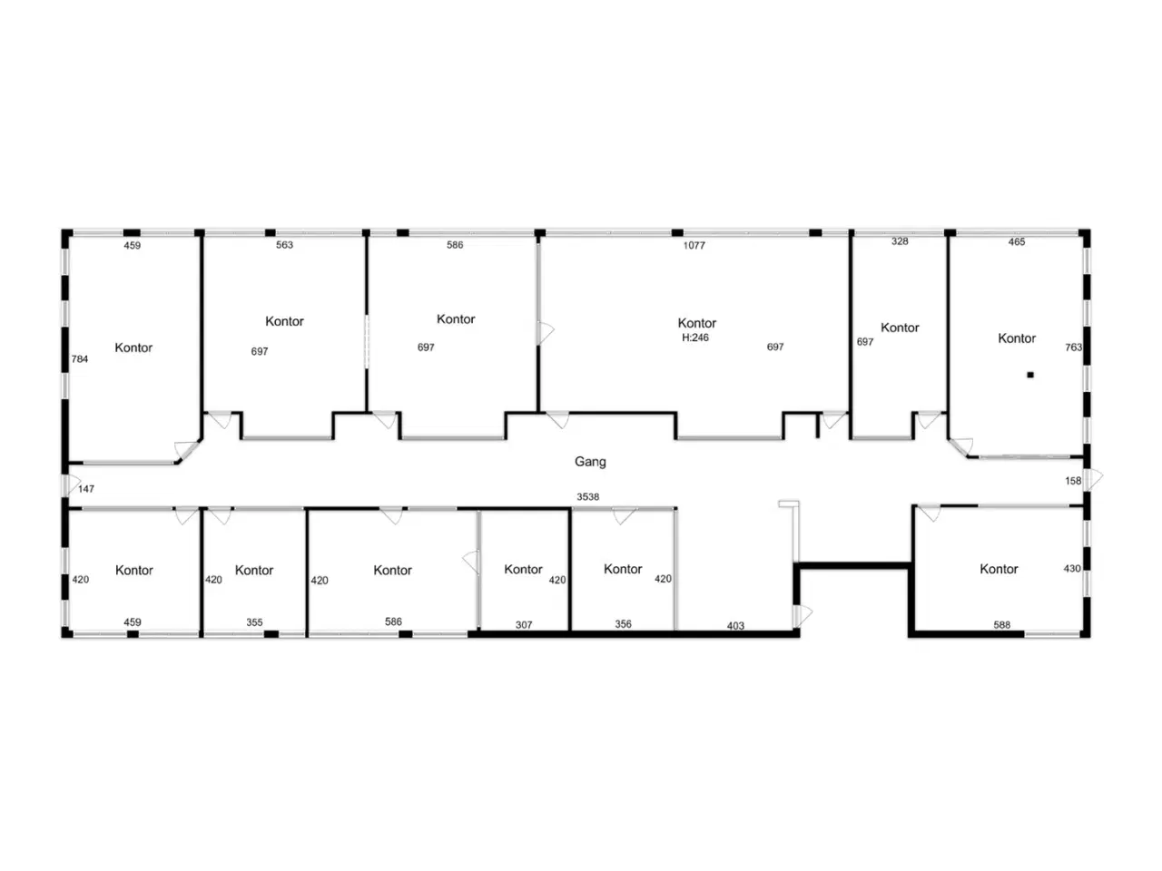
Lejemålet er beliggende i præsentabel erhvervsejendom i god stand i erhvervsområde med let adgang til motorvejs systemet og offentlig transport. Lejemålet er indrettet med en central fordelingsgang, hvorfra der er adgang til de enkelte rum. Planløsningen består af separate kontorrum fordelt med kontorer på hver side af gangen. Kontorerne varierer i størrelse, hvor flere er mindre enkeltkontorer, mens enkelte er større og kan anvendes til eksempelvis møderum eller fælleskontor. Der er en fælles reception. Ligeledes er toiletterne placeret på fællesarealerne. Lejemålet fremstå lyst og pænt med hvide vægge og linoleumsgulv. Lejemålet har adgang til kantine samt fitness og omklædning mod betaling. Der er mulighed for parkeringspladser ved lejemålet Lejemålet opvarmes med fjernvarme. Beliggenhed Lejemålet er beliggende i Glostrup i et populært og veletableret erhvervskvarter med en attraktiv placering for mange typer virksomheder. Området består af mange erhvervsejendomme, hvor lejerne generelt beskæftiger sig med håndværk, madproduktion, flyttefirmaer, maskineudlejning, elektronik samt anden lettere industri og lagerrelateret virksomhed. Omkring erhvervsområdet findes der mange boliger og dertil særdeles gode transportmuligheder i form af motorvejsforbindelser, hvor både E55 og Frederikssundmotorvejen indgår. Ligeledes er Glostrup Nord – Hersted Letbane kun 800 meter fra lejemålet, hvilket sikrer nem adgang for både medarbejdere og besøgende. Derudover er der flere grønne områder omkring lejemålet – heriblandt Vestskoven. Lejemålets energimærke er angivet til: B
Se annoncen hos forhandlerenFlere detaljer























