1501-42: Roholmsvej 10H, st., 2620 Albertslund – 741 m2
52.488 kr.
Beboelsesvogne fra Simple Homes
Udlejning til bl.a. privatgenhusning - høj service og hurtig levering
UDLEJNING AF BEBOELSESVOGNE
Vi udlejer vogne, lifte, Mobile badeværelser, Mandskabsvogne og Kontor-/spisevogne
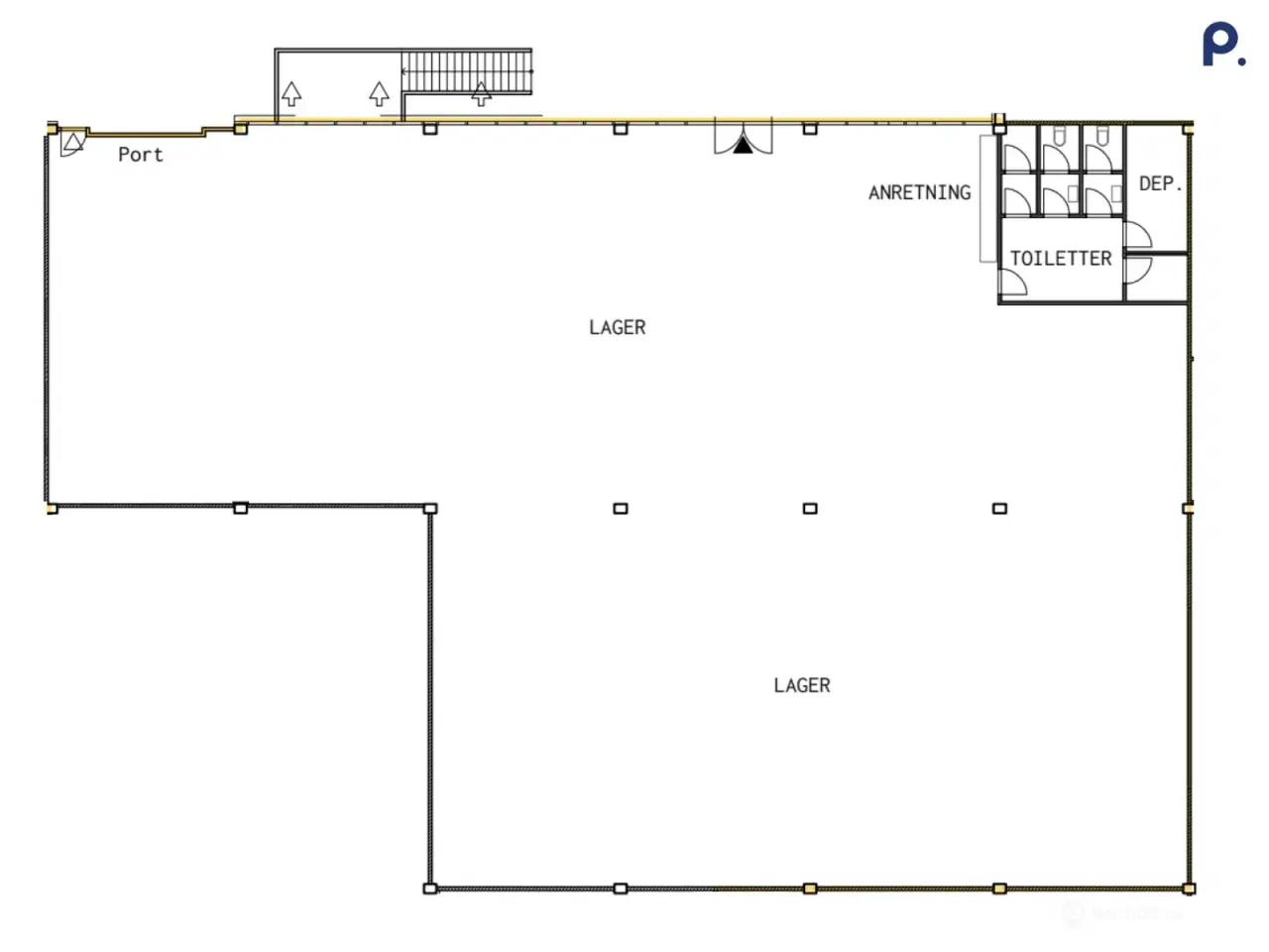
## Funktionelt lager med port i Albertslund Lejemålet på Roholmsvej vil efter renovering være klar til indbyde til brug som lager eller lettere produktion. Her får man 741 m² med en fleksibel indretning, der kombinerer et stort regulært lager/showroom/produktionsområder med et separat kontor og toilet- samt spisefaciliteter. Lejemålet vil blive nyistandsat med blandt andet nye epoxybelagte gulve og nymalet samt renoveret køkken, badefaciliteter, toiletter og omklædningsmuligheder. Kontoret fremstår lyst og funktionelt, og der er rigelig parkeringsplads på ejendommen – herunder opladning til elbiler. Billederne er fra tidligere udlejning af lejemålet hvor lejemålet er lagt sammen med naboen på 468 m², dvs. 1.208 m² og fremviser derfor ikke resultatet inden genudlejning. Kontakt os for inspirationsbilleder af tilsvarende lejemål som kan forventes efter ombygningen. Lejemålet har mulighed for udlejes som 1.208 m² (som vist på billederne) eller 2.457 m², da tilstødende lejemål ligeså er under renovering og udlejning. Med en praktisk beliggenhed i Albertslund, gode tilkørselsforhold og en indretning, der gør det let at kombinere lager og kontor, er dette lejemål ideelt for virksomheder med behov for både funktionalitet og sikkerhed.
Se annoncen hos forhandlerenFlere detaljer
















Ny




Ny