Kontor og lager i større ejendom
11.121 kr.
Beboelsesvogne fra Simple Homes
Udlejning til bl.a. privatgenhusning - høj service og hurtig levering
UDLEJNING AF BEBOELSESVOGNE
Vi udlejer vogne, lifte, Mobile badeværelser, Mandskabsvogne og Kontor-/spisevogne
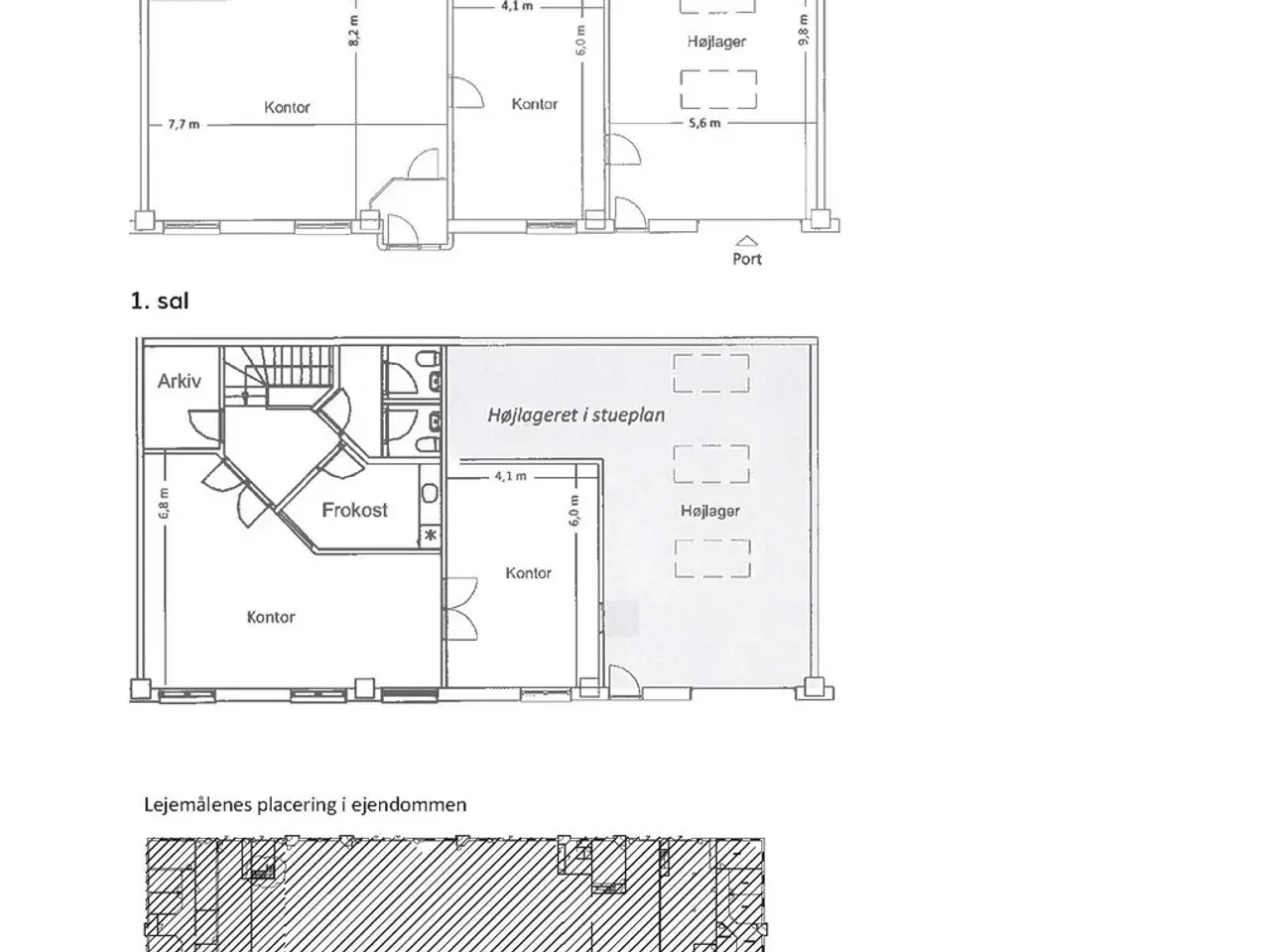
Kontorerne er i stueetagen indrettet med stort kontor med adgang via vindfang samt stort mødelokale/arkiv. Første salen er indrettet med stort kontor, frokoststue, arkiv samt 2 toiletter. Fra kontorerne i stueplan er der adgang til 110 m² højlager. Lagerhallen er tillige monteret med alu port og har en loftshøjde på 5,5 meter. En tidligere lejer har indrettet et værksted/kontor i lagerhallen. På 1. salen over dette kontor/mødelokale er der indrettet et kontor/ mødelokale, med indgang fra kontorerne på 1. sal. Lokalet på 1. sal, som udgør ca. 24 m2, indgår ikke i lejemålets samlede areal er er dermed ”gratis” Se indretningen på plantegningen.
Se annoncen hos forhandlerenFlere detaljer

















