Lyst og attraktivtkontorlejemål med fælles kantine
147.400 kr.
Beboelsesvogne fra Simple Homes
Udlejning til bl.a. privatgenhusning - høj service og hurtig levering
UDLEJNING AF BEBOELSESVOGNE
Vi udlejer vogne, lifte, Mobile badeværelser, Mandskabsvogne og Kontor-/spisevogne
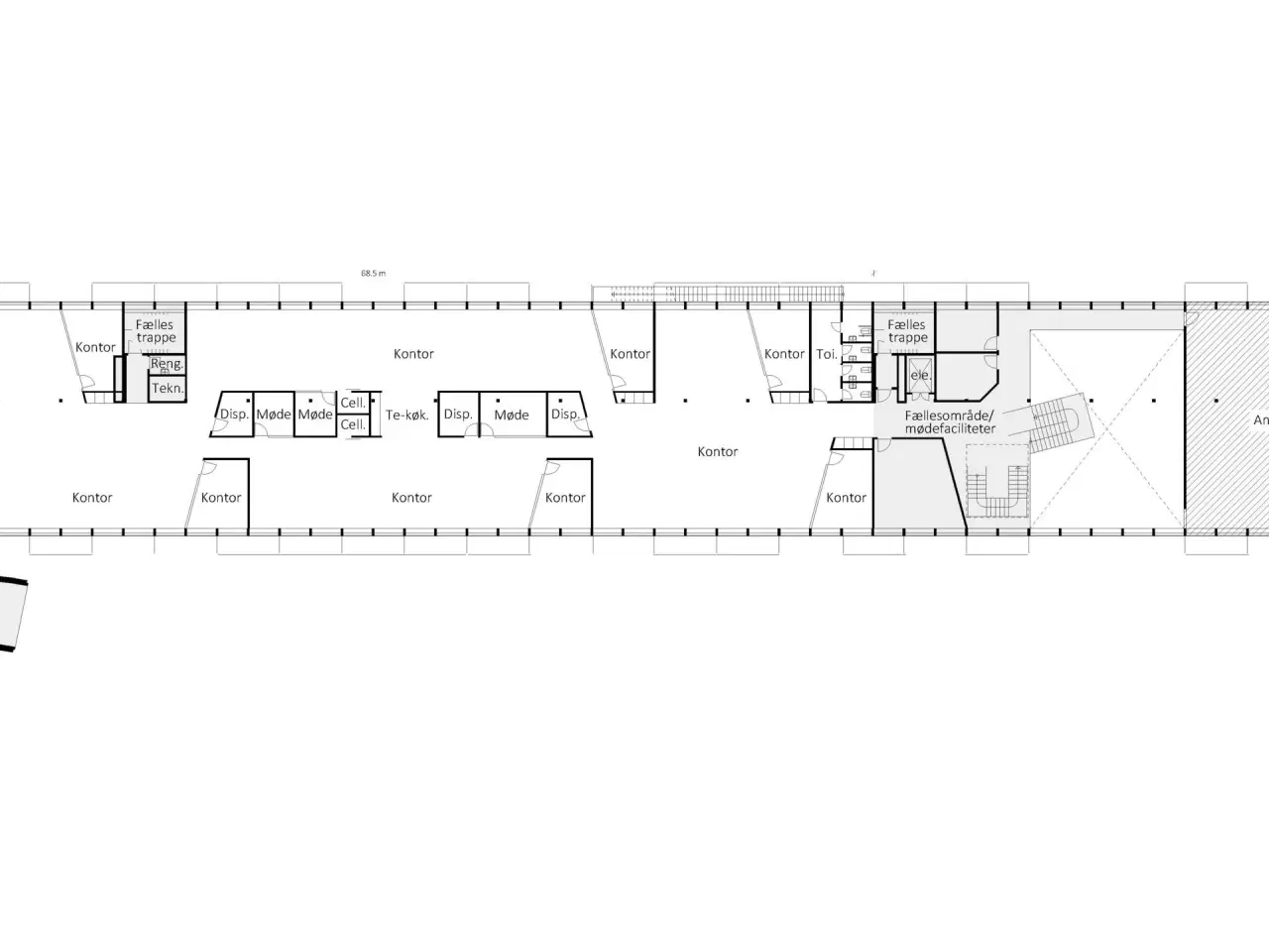
1. salen på Strandlodsvej 30 udbydes til leje. Lejemålet på i alt 1.474 m² er lyst og fleksibelt indrettet. Hvis ønsket kan lejemålet udvides med yderligere 300 m². Ejendommen har fælles kantine, mødelokaler og parkeringspladser og ligger i et blomstrende kvarter på Amagerbro tæt på grønne byrum, caféer og strand. Lejemålet henvender sig til virksomheder, der ønsker en central placering med nem adgang til Indre By, Københavns Lufthavn og motorvejen. Området Nærmiljøet byder på en blanding af moderne boliger, kontorer og lokale caféer. De grønne byrum som Amager Strandpark og Kløvermarken giver gode rammer for en Walk 'n Talk. Mulighederne for motion og sportsaktiviteter inden eller efter arbejde er ganske fordelagtige med flere nærliggende fitnesscentre og padelbaner i naboejendommen. Den offentlige transport er ligeledes i top, med både Øresund Metrostation og Lergravsparken Metrostation indenfor kort gåafstand. Herfra er der hurtig forbindelse til Indre By, Cityringen og Københavns Lufthavn, og flere buslinjer betjener området. Via supercykelstien er der kun 3 km til Kongens Nytorv, og for dem, der ankommer i bil, kan parkeringsplads på lejemålets område tillejes. Ejendommen Bygningen er opført i 1958 og har gennem årene været en vigtig del af områdets erhvervskarakter - og er det fortsat i dag, hvor stueetagen af ejendommen danner ramme om Viaplays danske hovedkontor. Nabobygningen på Jenagade 22 har huseret store produktionsselskaber som Metronome og Studios, mens Viasat/Allente fortsat bidrager til medie- og studieproduktionen i området. Ejendommen fremstår velholdt og tilbyder en række attraktive fællesfaciliteter, der skaber komfort og fleksibilitet for lejerne, herunder en kantine i stueetagen og fem mødelokaler med AV-udstyr til interne møder og kundearrangementer. Lejemålet Lejemålet på 1.474 m² er gennemlyst fra to sider, hvilket giver gode muligheder for en effektiv og fleksibel indretning med arbejdspladser langs begge facader. Planløsningen kombinerer åbne kontorområder med mødelokaler, så arealet kan opdeles i funktionelle arbejdszoner. Lejemålet istandsættes inden overtagelse og vil blandt andet blive opgraderet med ny LED-belysning integreret i loftsplader samt en ny gulvløsning, som lejer selv kan have indflydelse på.
Se annoncen hos forhandlerenFlere detaljer
























