Roligt kontorlejemål i Aarhus C. 1.107 m² mod gården
132.748 kr.
Beboelsesvogne fra Simple Homes
Udlejning til bl.a. privatgenhusning - høj service og hurtig levering
UDLEJNING AF BEBOELSESVOGNE
Vi udlejer vogne, lifte, Mobile badeværelser, Mandskabsvogne og Kontor-/spisevogne
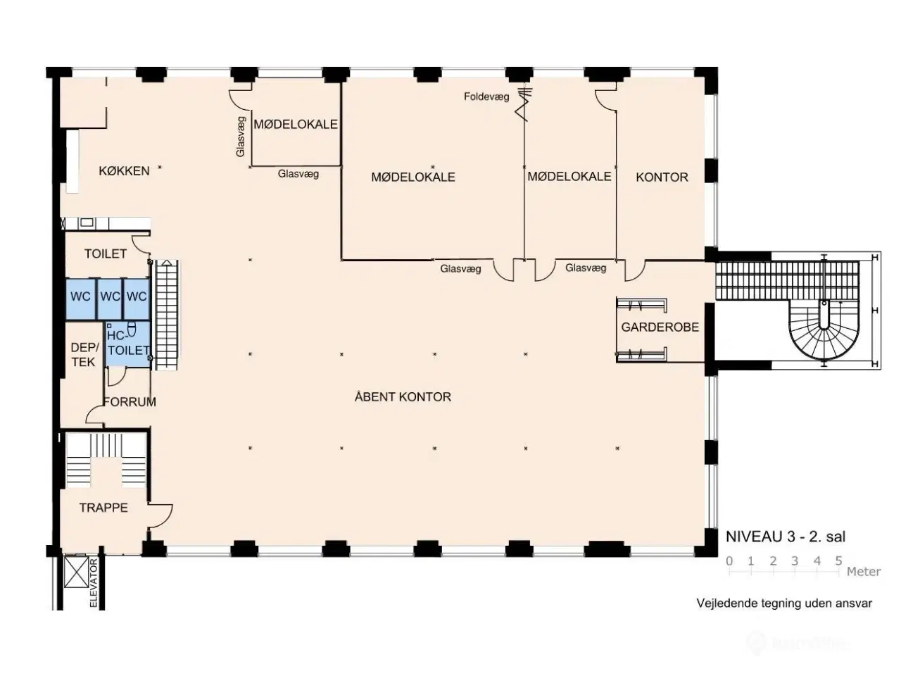
**Kontor i historisk bygning med rolig beliggenhed mod gården** Sukkerhustoften er et tidligere industribyggeri fra 1852, nænsomt omdannet til moderne erhvervsrammer på Frederiksbjerg midt i Aarhus C. Dette rummelige kontorlejemål ligger på niveau 3 og 4, på 2. og 3. sal i den del af bygningen med facade mod gården, hvilket skaber et roligt og lyst arbejdsmiljø væk fra gadebilledet. Lejemålet kombinerer moderne erhvervsfaciliteter med ejendommens industrielle ophav, hvor de synlige bærende bjælker bidrager til en varm og stemningsfuld atmosfære. Lejemålet har adgang fra gården og tilbyder parkering, cykelparkering og fælles udendørsarealer, hvor p-pladser kan tillejes i fælles gårdmiljø. Den centrale beliggenhed på Frederiksbjerg giver nem adgang til midtbyens handelsstrøg, Bruuns Galleri, Jægergårdsgade og banegården, hvilket gør det praktisk for både medarbejdere og besøgende. **Området** Lejemålet ligger centralt på Frederiksbjerg i Aarhus, kun 2 minutters gåafstand fra Bruuns Galleri, M.P. Bruunsgade og Jægergårdsgade samt 3 minutters gang til Banegården. Beliggenheden gør det særdeles praktisk for medarbejdere, der pendler til og fra arbejdspladsen med tog, letbane, bus, cykel eller bil. Lejemålet har adgang fra Jægergårdsgade og råder over cykelparkering, fælles udendørsarealer samt parkeringspladser, der kan tillejes i gårdmiljøet. Området er særdeles centralt placeret i midtbyens centrum og byder på boligkvarter, detailhandel, specialforretninger og byens største indkøbscenter, hvilket skaber attraktive rammer for både medarbejdere og besøgende. **Ejendommen** Bygningerne er en del af Århus Olies tidligere produktionsanlæg i Jægergårdsgade. Oprindeligt bestod bygningsmassen af 3 sammenhængende bygninger og et større udvendigt tankanlæg. Bygningerne som er fra begyndelsen af 1900-tallet var i en meget dårlig stand da Mogens de Linde overtog dem i år 2000, men fremstår efter en omfattende ombygning nu som Sukkerhustoften - et moderne erhvervsbyggeri, der bringer minder om et stykke århusiansk industrihistorie. De tilbageværende bygninger er tidligere anvendt som pakhuse og er derfor meget solidt bygget med søjler og dæk af beton. Mure er af murværk og er pudset med samme gule farve som de oprindelige bygninger stod i. Vinduerne er udskiftet til moderne termoruder, der i stil minder om de oprindelige smalle jernsprosse vinduer. Mod Jægergårdsgade er udført en moderne gavl af glas. Omkring bygningen er gården belagt med brosten og græsarealer til benyttelse for parkeringspladser, cykel og renovation. **Lejemålet** Lejemålet på 1.107 m2 består af de to øverste etager på niveau 3 og 4, på henholdsvis 2. og 3. sal i den del af bygningen som vender mod gården. Etagerne byder primært på åbent kontor med synlige bærende bjælker, der skaber et råt og stemningsfuldt miljø. Fra 3. sal er der åbent ned til 2. sal, hvilket giver en følelse af rummelighed og sammenhæng mellem etagerne. Lejemålet rummer desuden adskillige mødelokaler med glasvægge, tekøkken, toiletter og garderobe. Fra 3. sal er der adgang til en tagterrasse i tilbygningen, som ligger ovenover spiraltrappen, der forbinder etagerne. Vi glæder os til at fremvise denne unikke og sjældent udbudte beliggenhed. Lejemålets energimærke er angivet til: B
Flere detaljer
Om boligen
- Produkttype
- Erhvervslokaler






















