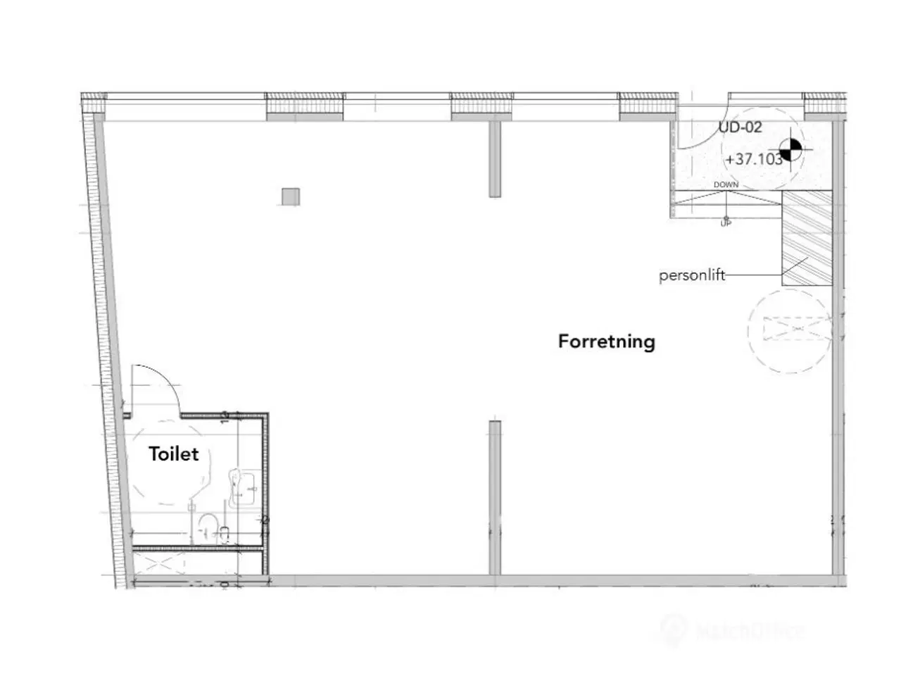
117 kvm til butik. kontor eller klinik
6.000 kr.
Beboelsesvogne fra Simple Homes
Udlejning til bl.a. privatgenhusning - høj service og hurtig levering
UDLEJNING AF BEBOELSESVOGNE
Vi udlejer vogne, lifte, Mobile badeværelser, Mandskabsvogne og Kontor-/spisevogne
Helt nyt og velbeliggende butiks-, kontor- eller kliniklokaler i centrum af Viborg. Lejemålet indrettes i samarbejde med lejer. Mange facadevinduer for stor synlighed og mulighed for udstilling af varer. Tæt på byens gågader og lige ved Trappetorvet med busstop for bybusserne. Gode parkeringsforhold i umiddelbar nærhed. Et lejemål med rigtig gode opstartsvilkår.
Flere detaljer















